\9日間限定イベント/
家づくりまるごと
体感フェア
#3棟合同見学会
見学会開催中
あなたの理想が
きっと見つかる
建築家とつくる家
CONCEPTコンセプト
高性能でありながらも、
希望を叶えた理想の住まい
建築家が一棟一棟、施主様の想いを形にするフルオーダー住宅。 デザイン性と快適性を両立し、自然の力を活かした住まいは、夏も冬も心地よく過ごせる工夫が満載です。 今回の見学会では、そんな唯一無二の住まいを実際に体感いただけます。 見た目のおしゃれさはもちろん、空気感や動線、素材感など、写真だけでは伝わらない「本当に心地よい暮らし」をぜひご自身でご確認ください。
見学予約する
LIST
モデルハウス一覧
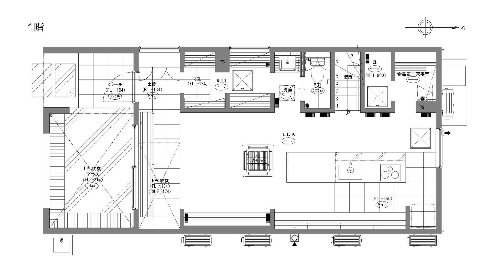
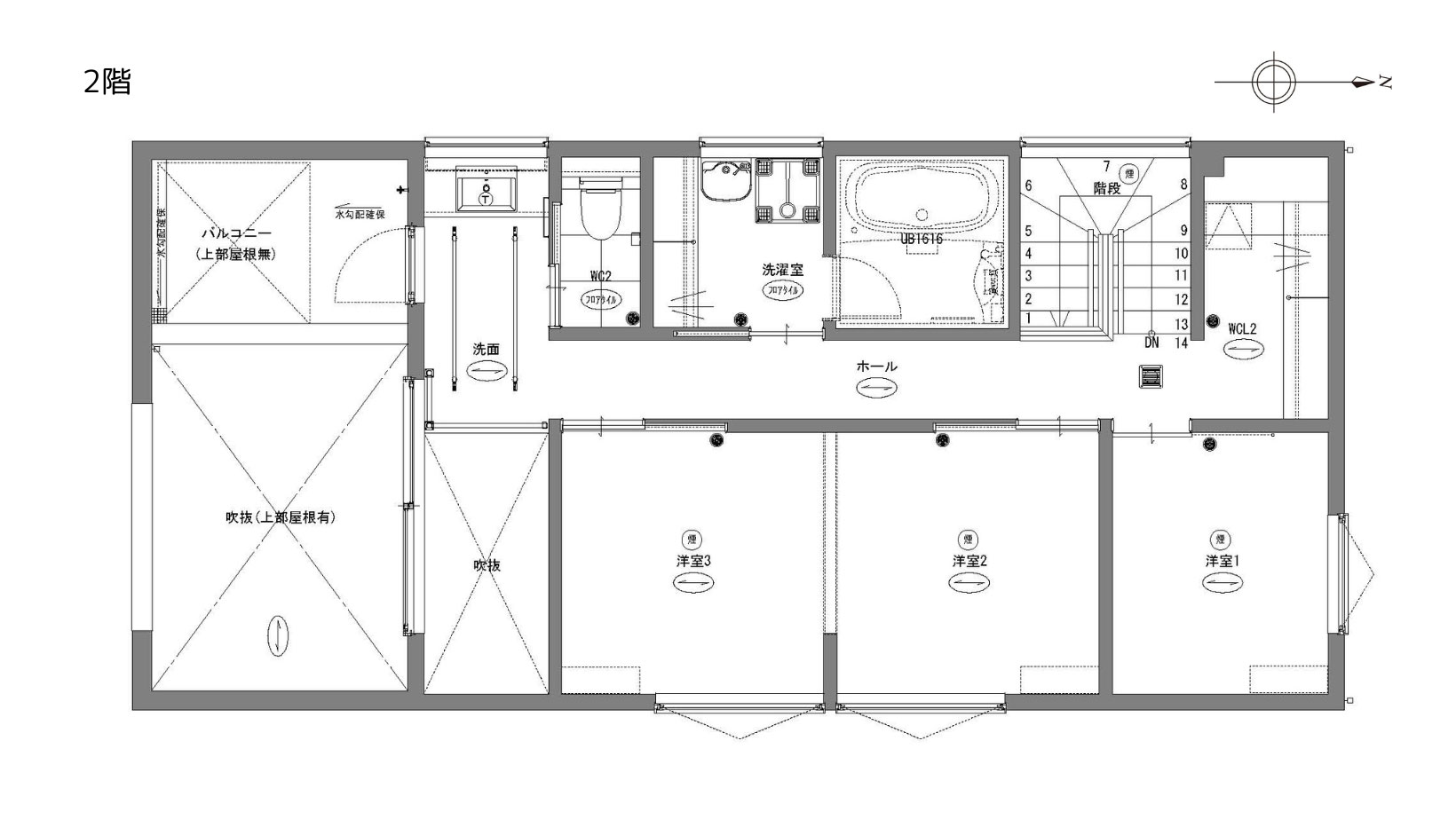
model01合志市豊岡
合志モデルハウス
「緑光角の邸宅」
高低差のある角地に建つ本モデルハウスは、交通量の多い住宅街に位置し、視認性も良好。南庭を確保した開放的な設計は、建築家・河添仁の経験と論理的思考による最適解です。閉じた外観からは想像できない明るく機能的な室内空間が魅力です。
01SUNOKO空間で一年中
快適な暮らしを実現
建築家の巧みな設計力で夏の日差しの遮りや冬の日差しの取り込みも細かく考慮されています。


022面道路の角地中央に配置されたファサード
高低差のある土地を有効活用し、建物をL時型に設計する事によって採光、プライバシーを共に確保を実現しています。
03アウトドアの要望も叶えた庭
お庭で焚火ができる、建物に囲われたプライベートガーデン。 建築家の設計ポイントをくみ取ったエクステリア計画が住まい全体の美しさと心地よさを高めています。


面積
-
敷地面積
233.43㎡(70.61坪)
-
建築面積
98.74㎡(29.86坪)
-
延べ床面積
171.40㎡(51.84坪)
-
1階床面積
90.46㎡(27.36坪)
-
2階床面積
80.94㎡(24.48坪)
性能値
-
C値(隙間相当面積)
0.23㎠/㎡
-
UA値(外皮平均熱貫流率)
0.35w/㎡k
-
ηAC値(冷房期の平均熱取得率)
1.2
-
ηAH値(暖房期の平均日射熱取得率)
1.0
長期優良住宅認定 耐震等級3認定
構造計算(許容応力度計算)実施
model02熊本市南区近見
近見モデルハウス
「土間カフェのある家」
一般的な「建売」とは一線を画す、暮らしを中心に設計された一棟。
住む人に寄り添い、家族や地域とのつながりを育む空間が特徴です。
狭小地でも、建築家の提案力により土地の特性を活かし、デザインと性能を両立。
土地コストを抑えることで、理想のマイホームを高水準で実現するBAUHAUS. オリジナルブランド「ATOIE」。
01建築家の細やかな気遣いを
感じられるキッチン
キッチンに立った時に、ダイニングに座っている人と目線が同じようになるように、キッチンの床を下げています。 さらに、キッチンからリビング、その向こうのテラスまで視線が抜けることにより広がりと繋がりを感じることができます。


02 将来を見据えた
個室づくり
お子様の成長に合わせて1つの部屋を2つに分割できる設計にしております。2部屋に区切ることで家族のライフステージに合わせて柔軟に使用できます。
032階は全て
プライベート空間
リビングの広さの確保のため、メインの水回りを2階に設置しました。 1階の生活感が出にくいというメリットが生まれ、2階の水回り動線も無駄がなく、生活しやすい暮らしを実現しています。


面積
-
敷地面積
136.45㎡ (42.61坪)
-
延べ床面積
95.63㎡ (28.91坪)
-
1階床面積
49.68㎡(15.02坪)
-
2階床面積
45.95㎡(13.89坪)
性能値
-
C値(隙間相当面積)
0.19㎠/㎡
-
UA値(外皮平均熱貫流率)
0.39w/㎡k
-
ηAC値(冷房期の平均熱取得率)
1.3
-
ηAH値(暖房期の平均日射熱取得率)
1.3
長期優良住宅認定 耐震等級3認定
構造計算(許容応力度計算)実施
model03熊本市北区高平
高平モデルハウス
「BAUHAUS.の家」
重厚感と洗練が共存するインダストリアルデザインの邸宅。
コンクリートや金属などの無機質素材に、木材やレザーなどの異素材を巧みに組み合わせ、細部までこだわった上質な空間が広がります。
夜にはライトアップされた建物とシンボルツリーが浮かび上がり、昼間とはまったく違う表情を見せる幻想的な美しさ。
プライバシーに配慮された設計と2台分のガレージ、存在感ある外観も見どころです。
01素材の表情を楽しむ、
上質なインダストリアル空間
アイアンの重厚感、タイルの無機質な美しさ、そして無垢材の温もり。異素材を絶妙にミックスしたインダストリアルデザインが、空間に奥行きと個性を与えます。素材一つひとつの質感や経年変化も楽しめる、暮らすほどに愛着が深まる住まいです。


02 水回りの回遊性
ポーチを経由することで、LDK側からも洗面・脱衣室へスムーズにアクセスできる設計に。 玄関からLDKまでを回遊できる行き止まりのない動線は、毎日の動きを快適にサポートします。
03外でも“くつろげる”
もう一つのリビング
約6畳のゆったりとしたポーチは、外での食事も楽しめる開放的な空間。 袖壁と植栽により、外からの視線をしっかり遮る設計で、プライバシーもしっかり確保されています。 人目を気にせず食事や読書、さらには洗濯物の外干しまで。 暮らしの幅が広がる、もう一つの“くつろぎの場所”をぜひご体感ください。


性能値
-
C値(隙間相当面積)
0.38㎠/㎡
-
UA値(外皮平均熱貫流率)
0.44w/㎡k
VOICEお客様の声
愛着が湧く家を建てることができました!
毎日が快適で、家で過ごす時間が一番幸せです。
周りの家と比べても、自分達の家が一番かっこいい!と思うほど素敵な家を建ててもらったなと感じています。
〈20代ご家族〉
これからの住まい方が楽しみな家にしていただきました!
バウハウスさんにお願いしようと決めたのは、モデルハウスや完成見学会に行って「こんな家に住んでみたい」と思ったからです。趣味の部屋や庭をどうするか考えるのが楽しく、日々ワクワクを感じながら過ごしています。
また、性能の高さも実感できて、冬は暖かく快適に過ごせました。
〈40代ご家族〉
ABOUT USバウハウスの
家づくり
お客さまの幸せをカタチにするため、 スタッフそれぞれが役割を担って、楽しく働いています。 それぞれが自分の個性に合った力を発揮し、 自らの能力を成長させながらお客さまの暮らしを豊かにする 住まいづくりのお手伝いをします。
SIMULATION住まいの相談
バウハウスでは、ライフシミュレーションで家計の見通しをクリアにするお手伝いもしております。
家づくりで多くの方が不安に感じる「お金のこと」をクリアにするために、ライフプランのシミュレーションがとても役立ちます。
家づくりに詳しく、沢山の方々の資金相談や家づくりのお悩みに対応した経験を持つアドバイザーに相談すると、月々の返済額やボーナス時の支払いを踏まえつつ教育費や将来のイベントも想定した上で「どんな生活ペースで買うのが無理がないか」を一緒に整理できます。
これで「住宅ローンって行ける?」というモヤモヤや、「生活水準が下がるかも」という不安も解決しやすくなりますよ。
見学とあわせて是非ご相談ください!
見学予約・お問い合わせはこちら