モデルハウス見学会
モデルハウス見学会
広々と過ごせる24坪の住まい
2026.3.1(日)~31(火)
10:00 ~ 17:00
鳥取市安長
CONCEPT
どんな物件?
2つのテラスに囲まれた、四季の移ろいを楽しむ家
南北にテラスを配置し、大きな窓からはたっぷりの光と風がリビングへ。一年を通して快適に暮らせる住まいに仕上がりました。
また住宅地にありながらもカーテン要らずで過ごせる、プライベート空間を実現。
建築家ならではのアイデアで叶えた"住み心地の良さ"をぜひ体感しませんか?
また住宅地にありながらもカーテン要らずで過ごせる、プライベート空間を実現。
建築家ならではのアイデアで叶えた"住み心地の良さ"をぜひ体感しませんか?
POINT
建築家のアイデア
01
大きな窓から
陽光を浴びる毎日を
大きな窓から差し込む自然光とテラスを抜けていく心地よい風。窓を開け放てば、テラスとリビングがシームレスにつながり、空間の広がりを最大限に享受できます。
02
安心感をもたらす
家族がつながる間取り
まるでワンルームのような、開放的で家事がラクになる間取り。キッチンからリビング、さらには和室まで見渡せる設計で、お子様の様子を見守りながら用事ができます。
03
心が落ち着く
小上がり和室
リビングとつながるリラックス空間。普段は読書スペースや子どもの遊び場として、来客時には宿泊スペースとして、多目的に活躍し、日々の生活に彩りを添えます。
04
期待を超えた
広さを体感
本当に24坪?と思わず疑いたくなる、伸びやかな空間を実現。建築家による視覚のマジックで、"コンパクトで暮らしやすいのにゆとりがある"毎日を叶えます。
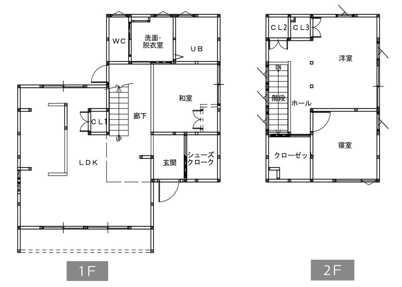
間取り

こんな方におすすめ!
✔️ 明るく開放的なリビングに憧れるが、プライバシーも守りたい方
✔️ 緑のある暮らしを楽しみたい方
✔️ 20〜30坪台のリアルなサイズを体感したい方
✔️ 平屋のような、ワンフロアで完結する暮らしに憧れる方
✔️ 緑のある暮らしを楽しみたい方
✔️ 20〜30坪台のリアルなサイズを体感したい方
✔️ 平屋のような、ワンフロアで完結する暮らしに憧れる方
DATA
住宅性能
毎日を快適に過ごす高性能住宅5つの性能
耐震等級「3」最高等級対応
許容応力度計算
地震の多い日本で安心の毎日を送るために最高等級の耐震仕様に対応しています。
耐風等級「2」最高等級対応
家の安全に欠かせない指標のひとつが耐風等級です。風による圧力で家が倒壊や損傷しない強度を示します。
第1種換気システム
24時間空気を管理します。外気温の室内への影響を抑制できることは高性能住宅のポイントのひとつです。
C値 高水準対応/気密性能
全棟実測実施
気密性能を示す指標です。ゼロに近いほど家に隙間が少なく気密性能が高いということになります。
UA値 高水準対応/断熱性能
断熱性能を示す指標です。ゼロに近いほど断熱性能が良いといえます。
敷地面積
166.25㎡
(50.3坪)
延床面積
81.16㎡
(24.6坪)
C値
0.35
UA値
0.3
VOICE
お客様の声
ライフスタイルを汲んだプラン提案をしていただきました
自分達の生活を知ってもらった上で間取りの検討が始まるので、思った以上に自分達に合った動線が確保できたところが良かったです。打合せの際も「なぜそれを気に入っているのか」など、私たちの価値観を一段階深く把握しようとしてくれました。
30代
女性
高気密・高断熱を実感できた!
どんな目的で・何にこだわってなど、多くの細かい視点で家づくりをしていくので、自分たちの家に愛着が湧きます。そしてなんといっても過ごしやすい!初めての冬を迎えますが暖かく過ごせています。
30代
ご家族
ABOUT US
R+house松江・鳥取・米子・倉敷
私たちは山陰・山陽エリアを中心に新築住宅を手掛けています。
私たちがご提供するのは、高気密・高断熱・高耐震による“夏は涼しく、冬は暖かい”高性能の快適な住宅。お客様にとって、家づくりは一生のうち何度もあることではないからこそ、妥協なくこだわってほしいし、家づくりのプロフェッショナルとしてそのこだわりに応えたい。そして、性能やデザイン、予算と、すべてにおいて満足してもらえる家づくりを目指したいと考えています。
しつこい営業はいたしませんので、ぜひお気軽にご予約ください。
私たちがご提供するのは、高気密・高断熱・高耐震による“夏は涼しく、冬は暖かい”高性能の快適な住宅。お客様にとって、家づくりは一生のうち何度もあることではないからこそ、妥協なくこだわってほしいし、家づくりのプロフェッショナルとしてそのこだわりに応えたい。そして、性能やデザイン、予算と、すべてにおいて満足してもらえる家づくりを目指したいと考えています。
しつこい営業はいたしませんので、ぜひお気軽にご予約ください。

申込期限:2026/03/30 (月) 17:00
| 日時 | 2026.3.1(日)~31(火) 10:00 ~ 17:00 |
|---|---|
| 会場住所 | 鳥取県鳥取市安長264-34 |
| 備考 | お電話でもご予約を承っております。 0859-30-2034(10:00~17:00/火・水曜定休) |
| 営業時間 | 10:00~17:00 |
会場MAP
【特典条件】
・WEBからお申込みの方限定
・真剣に家づくりをお考えの方
・初めてご来場いただきました、1家族様につき、1枚のお渡しとなります。
・WEBからお申込みの方限定
・真剣に家づくりをお考えの方
・初めてご来場いただきました、1家族様につき、1枚のお渡しとなります。