岩見建設有限会社
岩見建設は、心地よい居場所を創出することを理念として建築にたずさわっています。家づくりにおいては、先人の知恵と新しい技術を総合的に判断し、「岩見建設」としての基準・品質で住まいを提供し続けたいと考えます。日常生活の多様化に対応することはもちろんのこと、お施主様の暮らし方に寄り添った快適な住まいをR+で実現していきます。
R+house DESIGN CONTEST AWARD 受賞歴
岩見建設有限会社の 施工事例
 
 
 
中間領域で周囲にそっと心を開く住まい
 
 
 
変形地に佇む、“ふつう”じゃない家
 
 
 
柳の家
 
 
 
暮らし方の可能性を示す平屋の家
 
 
 
潜在的な要望をデザインした 大屋根のお家
 
 
 
プライバシーを考慮した街と緩やかに繋がる平屋
 
 
 
海を切り取る平屋
 
 
 
庭に囲まれた家
岩見建設有限会社の イベント情報
 
 
 
 
 
 
 
 
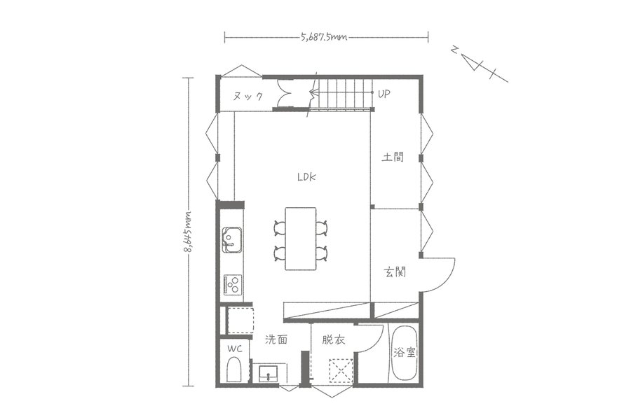
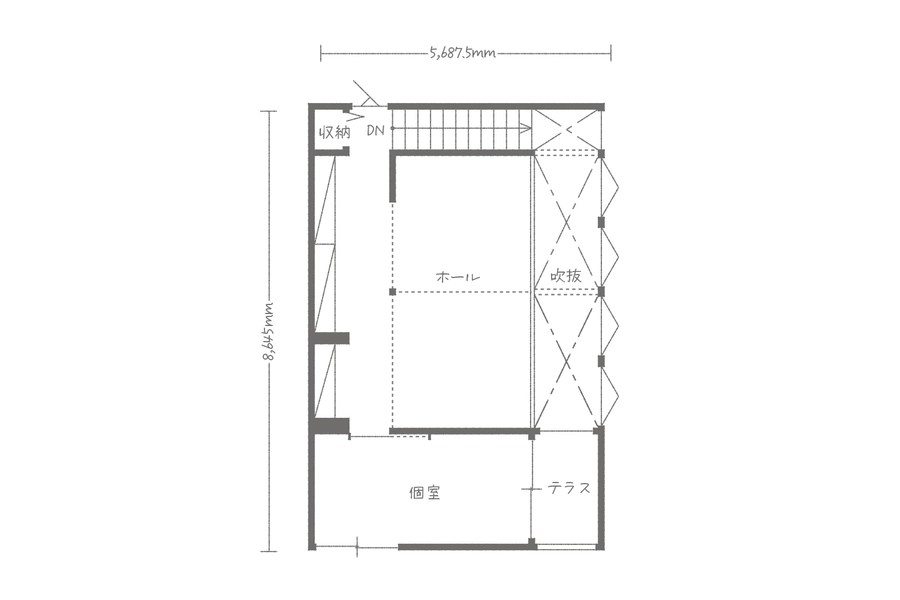
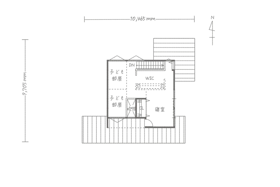
岩見建設有限会社の 間取り事例
岩見建設有限会社の ルームツアー・工務店紹介動画
 
 
岩見建設有限会社の 強み・こだわり
 
暮らしをデザインする「建築家との家づくり」
 
厳しい気候でも快適に過ごせる断熱性能
ZEHを超える断熱性能が標準
住宅の断熱性能を数値化した「UA値」(数値が小さいほど高性能)は「0.46以下」を標準とし、冷暖房に頼りすぎずに夏は涼しく冬は暖かい、快適で省エネな住まいを提供します。
壁の中を守る、高性能断熱材「ネオマフォーム」
土台から家を守る「基礎断熱」と高性能な窓
さらに、家の中で最も熱が出入りしやすい窓には、一般的なアルミサッシに比べ約2.6倍も断熱性能が高い「樹脂サッシ」と、特殊な膜で熱の移動を抑える「Low-E複層ガラス」を組み合わせて採用。結露の発生を強力に抑え、冷暖房の効率を格段に向上させます。
 
断熱性能を活かすために重要な気密性能
岩見建設有限会社では「気密性能」、つまり家の隙間をいかに無くすかが、断熱性能を最大限に引き出し、快適で長持ちする家をつくるための重要な鍵だと考えています。
岩見建設有限会社では「気密性能」、つまり家の隙間をいかに無くすかが、断熱性能を最大限に引き出し、快適で長持ちする家をつくるための重要な鍵だと考えています。
「C値0.5以下」が標準仕様
「全棟・仕上げ前」の気密測定で確実に
高気密な家を活かす「計画換気システム」
 
地震から家族を守れる耐震性能
最高ランクの「耐震等級3」を標準仕様に
そして、その性能を確実なものにするため、一棟ごとに構造専門の建築士が「許容応力度計算」という最も厳密な方法で構造計算を実施。部材一本一本にかかる力まで詳細に計算し、設計通りの強度が確保されていることを科学的に保証します。見た目のおしゃれさだけでなく、命を守るための性能に妥協はありません。
強さと耐久性を両立する高性能な「R+パネル」
見えない部分へのこだわりが、本当の強さをつくる
地盤改良工事
適切な防蟻処理
 
資金計画でご予算に合わせた家づくり
「家づくりにかかる全ての費用」を正直にお伝えします
高品質と適正価格を両立する、無駄のない仕組み
独自の流通ルート
合理的な設計ルール
建築家との家づくりを、手の届く価格で
 
建ててからもずっと安心のアフターサポートサービス
岩見建設のアフターサポートサービス
家価値60年サポート
24時間365日対応可能な「サポートデスク」
5年の防蟻保証
岩見建設有限会社の 店舗情報
石見
| 住所 | 島根県益田市かもしま西町6-21 | 
|---|---|
| TEL | 0856-22-8268 | 
| 営業時間 | 09:00〜17:30 | 
| 定休日 | 水曜日 | 
お電話の際はR+houseネットワークを見たと伝えていただけるとスムーズです。
岩見建設有限会社の スタッフ紹介
 
staff
遠藤 功典
■遍歴
1981年4月 益田市生まれ
益田市立吉田南小学校
益田市立益田中学校
京都府美山高等学校
地域工務店
岩見建設有限会社
■好きな時間
サーフィンをする時間
友人と過ごす時間
 
Staff
宮本 拓真
■遍歴
1993年10月 生まれ
益田市立西益田小学校
益田市立横田中学校
島根県立益田高等学校
早稲田大学文学部
株式会社BASE OF SPORTS
株式会社 WILL TRANCE
岩見建設有限会社
■好きな時間
犬と過ごす時間
火を見ながらお酒を飲む時間
ゴルフに行く前の朝
■好きな人物
斎藤 祐樹(野球)
小宮山 悟(野球)
山田 孝之(俳優)
 
Staff
渡辺 真也
■遍歴
1991年10月 生まれ
福岡市立有住小学校
福岡市立西福岡中学校
福岡県立城南高等学校
熊本大学工学部建築学科
株式会社 安藤・間
岩見建設有限会社
■好きな時間
サウナで考える時間
海に浮かんでる時間
いいかげんやで食べる時間
■好きな人物
松本人志(芸人)
橋本学(音楽)
内藤廣(建築家)
 
代表取締役
岩見 基史
■遍歴
1992年3月 生まれ
津和野町立日原小学校
津和野町立日原中学校
島根県立益田高等学校
熊本大学工学部建築学科
熊本大学工学部建築学科大学院
岩見建設有限会社
■好きな時間
野球場でお酒を飲む時間
庭でお酒を飲む時間
休日の朝
■好きな人物
清家 清(建築家)
長谷川 豪(建築家)
本田 圭佑(サッカー)
岩見建設有限会社の 会社情報
| 会社名 | 岩見建設有限会社 | 
|---|---|
| 店舗名 | R+house 石見 | 
| 所在地 | 〒698-0047 島根県益田市かもしま西町6-21 | 
| TEL | TEL: 0856-22-8268 | 
| 代表者名 | 代表取締役社長 岩見 基史 | 
| 役員 | 代表取締役会長 岩見 智行
 | 
| 事業内容 | 注文住宅(R+house) 
 | 
| 設立・創業 | 昭和61年(1986)5月2日 | 
| 資本金 | 20,000,000円 | 
| 許認可登録 | 建設業許可
 | 
| 取引銀行 | 島根益田信用組合 山陰合同銀行 | 
 
 
 
 
 
 
 
 
 
 
 
 
 
 
 
 
 
 
 
 
 
 
 
 
