R+houseネットワーク
メニュー 閉じる
間取りのヒント

回遊動線とは?注文住宅で回遊動線を取り入れた間取りを設計する際のポイント

更新日 2025.10.16 / 公開日 2025.10.16
#一戸建て #新築 #クローゼット #庭・中庭 #注文住宅 #マイホーム #玄関 #キッチン #家事がしやすい

注文住宅では「回遊動線」を意識した間取りが人気です。住宅に回遊動線を取り入れると、家の中の移動がスムーズになり、家事や子育ての負担を減らせます。ただし、単純に回遊動線を取り入れれば快適な住宅になるというわけではありません。機能的な回遊動線を実現するには、ポイントをしっかり押さえることが大切です。この記事では、回遊動線のメリットやデメリット、回遊動線を取り入れた間取りで失敗しないためのポイントを紹介します。

植栽が美しい明るい外観
目次

住宅図面
写真②住宅図面-min.jpg のコピー.jpg 88.17 KB
回遊動線とは、家の中で行き止まりがないようにぐるぐると回遊できる箇所を取り入れて設計された動線のこと。回遊動線を意識した住宅は、玄関からキッチン、リビングからキッチン、ランドリールームなどを無駄なく、スムーズに移動できます。

各部屋や設備へアクセスしやすいので、子どもの世話をしながら家事をするときや複数の家事を同時進行するときもストレスが少ないでしょう。このように回遊動線を意識した間取りは、家事の時短につながると人気があり、最近では多くの住宅で取り入れられています。

メリットの単語と指差し棒
写真③メリットの単語と指差し棒-min.jpg のコピー.jpg 72.05 KB
では、回遊動線を意識した間取りにすると、どのようなメリットがあるのか見ていきましょう。
回遊動線のある家のメリットのひとつは、無駄な移動が減り家事効率が上がることです。例えば洗濯は、洗う・干す・たたむ・しまうという4つの工程が必要で、手間や時間がかかります。回遊動線を取り入れて、キッチンと洗面所、ベランダをつなぐと、料理の合間に洗濯物を干したり、取り入れたりがスムーズになるでしょう。回遊動線上に、通り抜け可能なウォークスルークローゼットを取り入れるのもおすすめです。取り入れた洗濯物を、クローゼットにしまいやすくなります。

また、回遊動線の間取りは行き止まりがないため、掃除機やフロアワイパーをかけやすい点がメリットです。ドアの開け閉めも少なく、掃除にかかる時間を減らせるでしょう。

>>参考コラム:家事動線がいい間取りの家とは?家事が楽になるアイデアや施工事例を紹介
子育て中の方におすすめなのが、キッチン・浴室・リビング・キッズスペースに回遊動線を取り入れた間取り。家事をしながら常に子どもの気配を感じられるため、見守りがしやすいメリットがあります。キッチンと浴室、トイレなどの水回りを近くに配置した回遊動線なら、入浴中やトイレに入っている子どもに呼ばれた際も、すぐに対応できるでしょう。

>>参考コラム:子育てしやすい注文住宅とは?家づくりのポイントや間取りの実例を解説
回遊動線を取り入れた間取りにすると、1つの場所への出入り口が増えるため家族同士の動線が被らずに混雑を減らせるメリットがあります。特に朝の忙しい時間帯の場合、身支度のための洗面所や、外出時の玄関付近は家族同士で渋滞が起きてしまうことも。回遊動線を取り入れた家では、洗面所や玄関付近に複数のルートがあることで、家族同士がぶつかる頻度を減らせるのです。
回遊動線を意識した間取りは、壁が少ないため、視界を遮らず開放感のある空間づくりができます。家の面積が同じ場合と比べても、回遊動線の家はそうでない家と比べて部屋全体が広く見えるでしょう。さらに、回遊動線を取り入れた間取りにプラスして、吹き抜けをつくったり大きな窓を取り付けたりすると、より開放的な空間にすることもできます。

デメリットの単語と指差し棒
写真αデメリットの単語と指差し棒-min.jpg 42.51 KB
生活をするうえでメリットのある回遊動線ですが、デメリットとなりうる点も存在します。メリットだけを考えて家を建てて後悔しないためにも、注意点もしっかり把握しておくことが大切です。ここからは、回遊動線を取り入れるデメリットについて紹介します。
回遊動線は、各部屋へのアクセスルートが増える反面、取り入れる場所によっては家族間のプライバシーを確保しにくいといったデメリットが発生する場合があります。例えば、一人でゆっくりしたいときや、仕事や勉強をするとき、家族の気配が気になって集中できないといった場合もあるでしょう。

また、キッチンやリビングから浴室横の洗面所へ移動できる動線の場合、入浴中に洗面所へ人が出入りする点が気になります。回遊動線を取り入れる場合は、家族のライフスタイルに合わせ、プライバシーを考慮した間取りを考えましょう。
土地の面積が限られている場合、回遊動線にすることで収納スペースの確保が難しくなる場合があります。回遊動線の家は壁が少なく通路が多いことで、収納に割けるスペースが減ってしまうのです。しかし、収納が少なければ暮らしにくい家になります。クローゼットや生活用品のストック用収納など、家族にとって必要な量の収納を、設計の段階で検討しておきましょう。
回遊動線を意識した間取りにすると、各部屋の出入り口が多くなり、ドアなどの部材が増え、材料費や施工費が高くなる場合があるでしょう。しかし、設計次第で費用を抑えることは可能です。回遊動線を取り入れる場合はコストも事前に確認しておくべきポイントのひとつです。

>>参考コラム:注文住宅のこだわりを予算内で叶えるには?優先順位や失敗事例をご紹介

玄関クローク
写真⑤徳島県_玄関クローク-min.jpg のコピー.jpg 487.29 KB
ここでは、機能的な回遊動線をつくるため、間取りの設計で考慮したいポイントを紹介します。家族構成や目的に合わせた回遊動線のコツを知って、暮らしやすい家を実現させましょう。
玄関からLDKまでの経路が2通りあると、来客時に玄関が散らかっていてもあわてずに済みます。お客様用ルートは玄関からホールを通って直接リビングへ行けるようにし、家族用のルートはシューズインクローゼットを通ります。

シューズインクローゼットのあるルートは、帰宅後、靴や自転車、子どもの外遊び道具などの荷物をしまってから、引き返すことなくLDKへ行ける家族専用通路です。このルート上に洗面所を設置すれば、帰宅後の手洗いまでスムーズにできるでしょう。
キッチンは1日に何度も利用する、家事の核とも言える場所です。キッチンを中心にした回遊動線の間取りを取り入れれば、家事の負担を軽減させられるでしょう。

玄関からキッチン、キッチンから洗面脱衣所、浴室、ランドリールームへ回遊できるようにすれば、料理と洗濯の同時並行が行いやすくなります。キッチンからダイニングやリビングを見渡せる間取りでは、子どもの見守りや宿題のサポートなどもしやすいでしょう。また、玄関からキッチンの動線の間にパントリーを設置すると、買い物した荷物を収納しやすくなります。

アイランドキッチンを採用して、キッチンそのものを回遊できるようにするのもおすすめです。両側からキッチンにアクセスできることで、家族と協力しながら料理、配膳がしやすいでしょう。

>>参考コラム:注文住宅ならこだわりのキッチンにしたい!失敗しない選び方やアイデア実例をご紹介
ランドリールームを中心とした回遊動線の家では、洗濯の時短ができる間取りです。ランドリールームは洗濯のための部屋。洗濯機と室内物干しや衣服をたたむ台を設置することで、洗う、干す、たたむといった洗濯の一連の流れを一気に済ませることができます。

洗面脱衣所や浴室、ランドリールームを横並びにし、近くにファミリークローゼットを配置すれば、干した洗濯物をそのまましまえて時短になります。物干しを設置する代わりにサンルームをつくって近くに配置すると、天日干しもラクにできるでしょう。また、キッチンを中心にランドリールームを回遊できるよう動線なら、料理と洗濯の平行作業もスムーズです。
コの字型やロの字型の住宅を採用して、中庭を中心とした回遊動線の家を建てるのもおすすめです。中庭を設けると、窓がつくりにくい建物の中心部でも日当たりや風通しがよくなります。住宅密集地や人通りの多い道路に面した土地でも、外側の窓を減らしてプライバシーに配慮しながら、中庭から採光が見込めます。

中庭にウッドデッキなどを設置し、部屋との段差をなくすと、子どもの遊び場や、各部屋をつなぐ通路として活用できるでしょう。
家族の衣類や荷物をまとめて収納できるファミリークローゼットを家の中心にすれば、着替えや身支度、洗濯後の収納がラクにできます。ファミリークローゼットへのアクセスが良ければ、各部屋に物や衣類を置く必要がないため、個室が物であふれるのを防ぎ、キレイな状態をキープできるでしょう。

設計図と手元
写真②建築家の図面作成の様子 .jpg 93.66 KB

回遊動線を取り入れたい場合は、家族のライフスタイルをイメージしながら、機能的な動線になるよう計画を立てましょう。利便性の低い回遊動線は、かえって使い勝手を悪くすることもあります。ここでは、回遊動線を取り入れる際に失敗しないためのポイントを紹介します。
回遊動線を間取りに取り入れたい場合は、まず部屋や収納の広さを十分に確保することが重要です。狭いスペースに無理に回遊動線を採用すると、収納場所が少なくなったり、生活するための広さが足りず狭く感じたりするケースも。なぜ回遊動線を導入するのかを意識しながら、効率的な家事や移動を可能にする動線をつくりましょう。暮らしやすい回遊動線の間取りに迷ったときは、住宅会社や工務店のプロに相談するのが一番です。

R+houseネットワークの工務店では、連携する建築家がプロの目で暮らしやすさを考えた回遊動線の間取りをデザインし、ご提案いたします。
回遊動線は目的に応じて適切に設置することが、暮らしやすい間取りのポイントです。さまざまな方向からアクセスしやすいからと、闇雲に出入り口を増やすだけでは、暮らしやすい動線とは言えません。利便性の高い回遊動線をつくるには、家族の暮らしを把握し、家族間で渋滞が起きるような、利用頻度が多い場所に採用すると失敗が少なくなります。目的地まで最短距離で移動できるよう、渋滞が起きる場所では回遊ができるようにと具体的な暮らしをイメージしながら考えてみましょう。
初めての家づくりで、機能的な回遊動線を取り入れるにはどうすればいいか、悩む方もいるでしょう。回遊動線を取り入れた間取りは、複雑な設計になることも多いため、実績が豊富な住宅会社に依頼するのが安心です。

家族の暮らしに合った十分な収納スペース、周辺からの視線を遮ることができるプライバシーの確保など、気になる部分はきちんと伝えておきましょう。回遊動線を採用するかどうかも含め、住む人のライフスタイルを考慮した間取りを提案してくれる住宅会社がおすすめです。

R+houseネットワークの工務店では、連携する建築家がプランを作成することで、お施主様のライフスタイルに合った家づくりができます。
ここでは実際にR+houseネットワークの工務店が手がけた回遊動線の家の施工事例を紹介します。家づくりの参考にしてください。

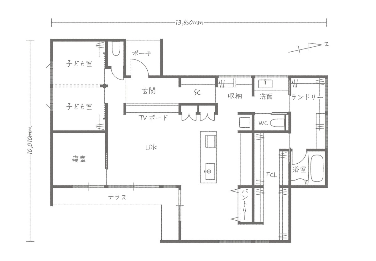
LDKを中心とした回遊動線の家の間取り
写真ⅰ LDKを中心とした回遊動線の家の間取り.jpg 112.58 KB
こちらは大空間のLDKを中心とした回遊動線の家。玄関からLDKはシューズクローゼットを通るルートと、メインルートの2通りがあります。シューズクローゼットを通る家族専用通路は、LDK、収納、洗面、トイレ、ランドリールーム、浴室、ファミリークローゼットにつながっています。帰宅後、靴や荷物を収納したら、手を洗ってLDKへ向かったり、そのままお風呂に入ったり、と無駄なく次の行動に移れます。
裏手に水回りとファミリークローゼットがまとまったアイランドキッチン
写真ⅱ 裏手に水回りとトファミリークローゼットがまとまったアイランドキッチン.jpg 180.84 KB
アイランドキッチンの裏手にトイレ、ランドリールーム、浴室、ファミリークローゼットがあり、料理の途中でもほかの家事がしやすい間取りです。暮らしやすさにこだわった、家族の理想の住まいと言えるでしょう。

>>施工事例:茨城県神栖市「家族が望んだ大空間と自慢の回遊動線」

>>参考コラム:注文住宅のキッチンをおしゃれにするには何が必要?ポイントや実例を紹介

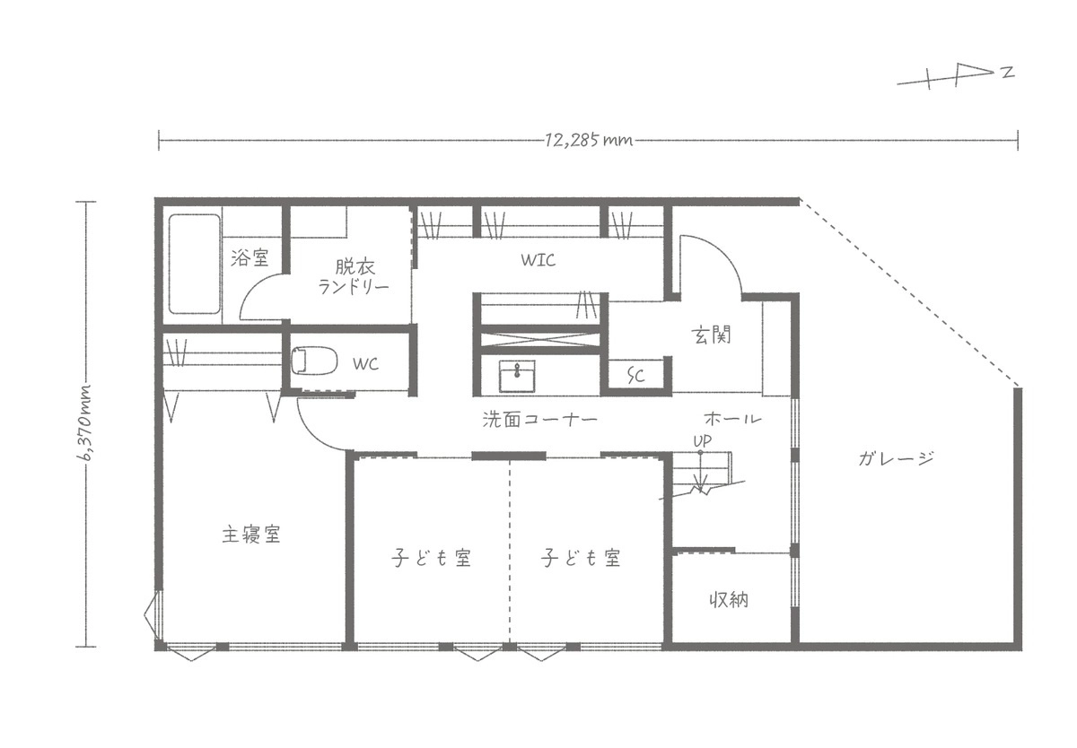
1階に個室と水回りを集約した回遊動線の家の間取り図
写真ⅲ 1階に個室と水回りを集約した回遊動線の家の間取り図.jpg 99.81 KB
こちらは2階建ての1階に水回りと個室を集約し、回遊動線を取り入れた間取りです。玄関からは階段のあるホールへ向かうメインルートと、シューズクローゼット、ウォークインクローゼットを通る家族専用ルートの2通りがあります。靴や荷物をしまい、廊下に設置した洗面コーナーで手を洗って部屋へ向かえる便利な動線です。
浴室と繋がるウォークインクローゼットとランドリールーム
写真ⅳ 浴室と繋がるウォークインクローゼットとランドリールーム.jpg 161.74 KB
ウォークインクローゼットとランドリールーム、浴室はまっすぐつながっています。脱いだ服を洗って干してしまうまでがラクな間取りと言えるでしょう。

>>施工事例:愛知県安城市「スミキリハウス」

住宅模型
写真⑦住宅模型-min.jpg のコピー.jpg 81.5 KB
回遊動線を意識した注文住宅を建てるなら、建築家と家づくりを行うR+houseネットワークの工務店にご相談ください。R+houseネットワークの工務店では、お客様のこだわりをしっかり伺ったうえで、理想の暮らしを「カタチ」にするお手伝いをします。高断熱・高気密・高耐震の住宅を手の届く価格で提供いたします。家事効率が良く住みやすい回遊動線を意識した注文住宅をお考えの方は、ぜひ一度R+houseネットワークの工務店へご相談ください。

>>回遊動線を取り入れたマイホームもお任せください!R+houseのデザインについてはこちら

R+houseについてさらに詳しく知りたい方は

間取りのヒント
「間取りのヒント」のコラムをもっと見る
施工事例リンク

「間取りのヒント」のコラムでよく読まれています

家事動線がいい間取りの家とは?家事が楽になるアイデアや施工事例を紹介

家事動線がいい間取りの家とは?家事が楽になるアイデアや施工事例を紹介

2025.03.24
南向き間取りとは?日当たりが良い注文住宅の間取りや事例も紹介

南向き間取りとは?日当たりが良い注文住宅の間取りや事例も紹介

2024.04.26
20坪台の間取り事例をご紹介!注文住宅で取り入れたい工夫や注意点とは?

20坪台の間取り事例をご紹介!注文住宅で取り入れたい工夫や注意点とは?

2025.03.20
【ルームツアー】細長い狭小地に建てた28坪の和モダンな平屋

【ルームツアー】細長い狭小地に建てた28坪の和モダンな平屋

動画
2024.11.22
平屋と二階建てならどっちを選ぶ?コストや利便性などを徹底比較!

平屋と二階建てならどっちを選ぶ?コストや利便性などを徹底比較!

2024.03.05
40坪の床面積でどんな間取りの家が建てられる?間取りで気を付けたいポイントや実例も紹介

40坪の床面積でどんな間取りの家が建てられる?間取りで気を付けたいポイントや実例も紹介

2025.03.14

カテゴリからコラムを探す

お金と住まい
お金と住まい
家と周辺環境
家と周辺環境
間取りのヒント
間取りのヒント
個性が見える施工事例
個性が見える施工事例
スタイル・暮らしのヒント
スタイル・暮らしのヒント
デザインのヒント
デザインのヒント
設備・性能
設備・性能
注文住宅の基礎知識
注文住宅の基礎知識
カタログ請求
イベント検索
工務店無料相談