R+houseネットワーク
メニュー 閉じる
間取りのヒント

家事動線がいい間取りの家とは?【施工事例12選】家事が楽になるアイデアも!

更新日 2025.12.15 / 公開日 2025.03.24
#注文住宅 #新築 #一戸建て #マイホーム #家事がしやすい

家事動線がいい間取りを採用すれば、家事の負担を減らせるでしょう。動線の無駄の多い家では、家事をするたびに大移動しなければならず、負担が大きくなります。
そこで今回は、家事動線がいい間取りとは何かを解説し、意識すべきポイントや実際の事例12個選抜してご紹介します。家事をしやすい注文住宅を建てたい方は、是非参考にしてください。

家事が楽になる家事動線のいい洗面ランドリースペース
目次
ウッドデッキや趣味スペースのあるバリアフリーな平屋
写真②ウッドデッキや趣味スペースのあるバリアフリーな平屋 .jpg 93.51 KB
動線は、人やものが動く道筋のことです。中でも家事動線は、料理、洗濯、掃除など家事をするための道筋を表しています。家事動線がいい家は、家事をする際に無駄な移動を必要とせず、スムーズに家事を完結できます。動線がいいと、家族のだれもが家事をしやすくなります。
3本の指を立てて笑顔の男性ビジネスパーソン
写真③3本の指を立てて笑顔の男性ビジネスパーソン-min .jpg 74.31 KB
注文住宅の間取り決めには家事動線が大切。そのほかにも意識しておきたい2つの動線があります。ここからは3つの動線について解説しましょう。
家事動線がコンパクトな範囲にまとまっていれば、家事のために移動する負担が減ります。具体的には、1階に洗濯機がある場合、洗濯機のすぐ近くに物干しスペースがあれば、洗濯物を干すために大きく移動する必要がありません。なるべく家事を楽にしたい場合は、水回りを狭い範囲に集約する、洗濯・乾燥・収納スペースを一カ所にするなど、家事動線を意識するといいでしょう。
生活動線は、家事以外の生活に関する動線のことです。寝室、入浴、トイレ、身支度、食事、くつろぎタイムなど、家族がそれぞれ生活をスムーズに送るための間取り、道筋を考えてみましょう。例えば、脱衣所と洗面台を分けることで、家族の入浴時に洗面所を使いやすくなります。帰宅後、リビングや居室へ向かう途中に上着や荷物を置けるクローゼットがあれば、動線を通るだけで片付けが済みます。間取りを考える際は、家族の暮らしに合わせた生活動線も意識してみましょう。
来客動線は、来客時どこでどのように過ごすのかといった道筋を表しています。例えばリビングを通らずに客間に通せるつくりであれば、生活動線と来客動線を分けられます。生活感を隠しつつ、おもてなしができるのです。来客動線を考える際は、トイレや手洗いについても考慮しておきましょう。トイレや洗面が、脱衣所やランドリースペース、キッチンを通る間取りでは、来客からプライベートな空間が丸見えになってしまいます。来客を通す場所がリビングとなる場合は、収納スペースを多めに確保して片付けがしやすいよう工夫するのがおすすめです。
納得するビジネスパーソンのイラスト
写真④納得するビジネスパーソンのイラスト-min.jpg 61.52 KB
ここからは、家事動線のいい間取りをつくるために、どのような点に気をつければいいのか、そのポイントを解説します。家事を楽にしたい、または時短をしたい方は家づくりの際に意識してみてください。
キッチン、お風呂、トイレ、洗面所などの水回りが近く、狭い範囲にまとまっている家は、家事を効率的に行えます。掃除のために移動する手間が省けるためです。ただし、家族が多い場合などで水回りをコンパクトにした場合、朝の身支度で洗面所やトイレが混みあうことも考えられます。家事動線の良さを考慮しつつ、通路をふさがず、混乱を避ける間取りが望ましいです。
行き止まりがなく、ぐるっと移動できる道筋を回遊動線と言います。混みあう場所では、この回遊動線を取り入れるのもおすすめです。

>>参考コラム:おしゃれな洗面台の注文住宅事例15選!家づくりのヒントとして活用しよう
パントリーは食料や飲料、日用品などのストックを置ける収納スペース。キッチン横に、パントリーを設ければ、かさばる食料やキッチン用品をまとめて管理できます。在庫の商品や数が一目でわかるため、管理の手間が省け、家事が楽になります。また、キッチン、パントリーを洗面脱衣所につなげ、切れ間なく家事ができる間取りにすると、より家事効率が向上するでしょう。玄関とキッチンの間にパントリーを設け、買い物した荷物を運び入れやすくするのもおすすめです。

>>参考コラム:注文住宅のおしゃれなパントリー特集!メリットや設置の注意点も解説
ワークスペースというと一般的に、仕事場や作業場が連想されますが、家事をするためのスペースとしても活用されています。ワークスペースや家事室があれば、アイロンがけや洗濯物たたみ、家計簿つけなど、さまざまな家事に集中して取り組めます。また、洗濯物などを脱衣所やリビングに持ち込む必要がなくなるため、リビングをきれいな状態にキープできます。取り込んだ洗濯物を家事室でたたむようにすれば、衣類から出るホコリが家中に広がることを防げます。

>>参考コラム:快適なワークスペースを自宅に!仕事がはかどる環境づくりのポイントと実例をご紹介
R+houseの工務店では、お施主様の希望や家族構成に合わせた家づくりを提供しています。ここからはR+houseの工務店が実際に手がけた施工事例から、家事動線がいい間取りを紹介しましょう。家づくりの参考にしてみてください。
洗濯・乾燥・収納が一気にできる脱衣所兼洗濯室
写真⑤洗濯・乾燥・収納が一気にできる脱衣所兼洗濯室.jpg 107.28 KB
こちらは脱衣所兼洗濯室を設けた住宅。脱いだ服を洗濯・乾燥させ、たたむまでが一気にできます。近くにウォークインクローゼットを設けているため、洗濯・乾燥を終えた衣類をさっと収納もできるのです。洗濯にかかる動線を短くした事例です。
家事動線のよいキッチン奥のパントリー
写真⑥家事動線のよいキッチン奥のパントリー.jpg 47.71 KB
また、この住宅ではキッチンの奥が回遊動線となっており、玄関への行き来がしやすい間取りのため、パントリーへの収納もスムーズにできます。家事動線を考えた間取りでは、このように帰宅後に買い物を収納するまでの動線も意識しておきましょう。

>>施工事例:東京都「妥協しない先にある こだわり抜かれた空間美」
一直線に配置された洗面脱衣所
写真⑦一直線に配置された洗面脱衣所.jpg 37.07 KB
こちらは洗面所・脱衣スペース、洗濯機、お風呂を一直線に配置した家。

水回り近くの広々としたウォークインクローゼット
写真⑧水回り近くの広々としたウォークインクローゼット.jpg 51.95 KB
水回り近くの広々としたウォークインクローゼットは、着替えもできる広々空間。洗面脱衣スペースに隣接しているため、洋服の収納も楽にできます。

>>施工事例:熊本県熊本市「無駄をそぎ落としたシンプルでミニマルなお家」
キッチンに直接つながる玄関横の入り口
写真⑨キッチンに直接つながる玄関横の入り口.jpg 54.48 KB
こちらの住宅では、買い物から帰ったら、玄関横の入り口を開けて荷物を直接キッチンに運べます。奥行きを持ったゆとりのある玄関は土間仕様に。アウトドア用品や、ガーデニング用品などを気軽に持ち込めるメリットがあります。機械や道具の手入れなど、汚れを気にせず取り組めるスペースにもなるのです。
リビングやテラスに目が届くキッチン
写真⑩リビングやテラスに目が届くキッチン.jpg 63.84 KB
キッチンからはリビングや、リビングに併設されたテラスが見え、子どもの遊びを見守りながら料理ができます。
住宅の壁に囲まれたアウトドアリビング
写真⑪住宅の壁に囲まれたアウトドアリビング.jpg 87.24 KB
生活動線を考える際は、家族の生活や家事中の子どもの遊び場なども考慮しておくといいでしょう。こちらの住宅の壁に囲まれたテラスは、周りを気にすることなくくつろげる、家族の憩いのアウトドアリビングとなっています。

>>施工事例:埼玉県入間市「アウトドアリビングを囲む家」

>>参考コラム:土間のある家特集!使い方やつくる際のポイントも解説
キッチンカウンターとテーブルをつなげたダイニング
写真⑫キッチンカウンターとテーブルをつなげたダイニング.jpg 58.46 KB
この住宅のダイニングはキッチンカウンターとテーブルをつなげた構造。できたての食事を素早く配膳でき、食べ終わったらさっと片付けができる特徴があります。家族が多い場合などはこのように、配膳についても考えておくのがおすすめです。
子ども部屋とフリースペースを結ぶ廊下
写真⑬子ども部屋とフリースペースを結ぶ廊下.jpg 50.58 KB
また、こちらの住宅では、子ども部屋とフリースペースを結ぶ廊下に大容量の棚をつくり、日々の生活用品を収納しています。リビングからは見えない位置の生活動線上に収納を設置することで、生活感を隠しながら、ものの出し入れがしやすいよう工夫しているのです。

>>施工事例:熊本県阿蘇郡「自然と共存する 土間のある平屋」

>>参考コラム:リビングをおしゃれにするには?施工事例や空間づくりのアイデアを紹介
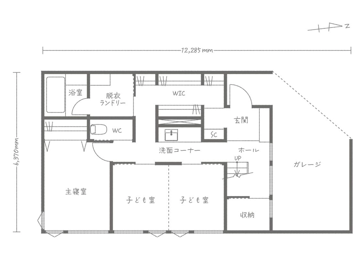
1階の間取り図(生活動線・来客動線を考えた回遊動線の家)
写真⑭1階の間取り図(生活動線・来客動線を考えた回遊動線の家).jpg 39.5 KB
こちらは、北側を一部隅切りした家の1階の間取り図です。玄関はホールに面した入口と、シューズクローゼットを通って、そのままウォークインクローゼットに寄れる入口の2つがあります。廊下のような開放的な広々空間のウォークインクローゼットからは、脱衣所兼ランドリースペース、浴室、洗面コーナー、寝室にスムーズに行き来できる回遊動線になっています。
玄関からも浴室からもアクセスしやすいウォークインクローゼット
写真⑮玄関からも浴室からもアクセスしやすいウォークインクローゼット.jpg 53.68 KB
玄関、浴室の両方からアクセスしやすい構造のウォークインクローゼットは、片側にはパイプを1本、反対側には上下2段パイプを設置し、収納量を確保しました。
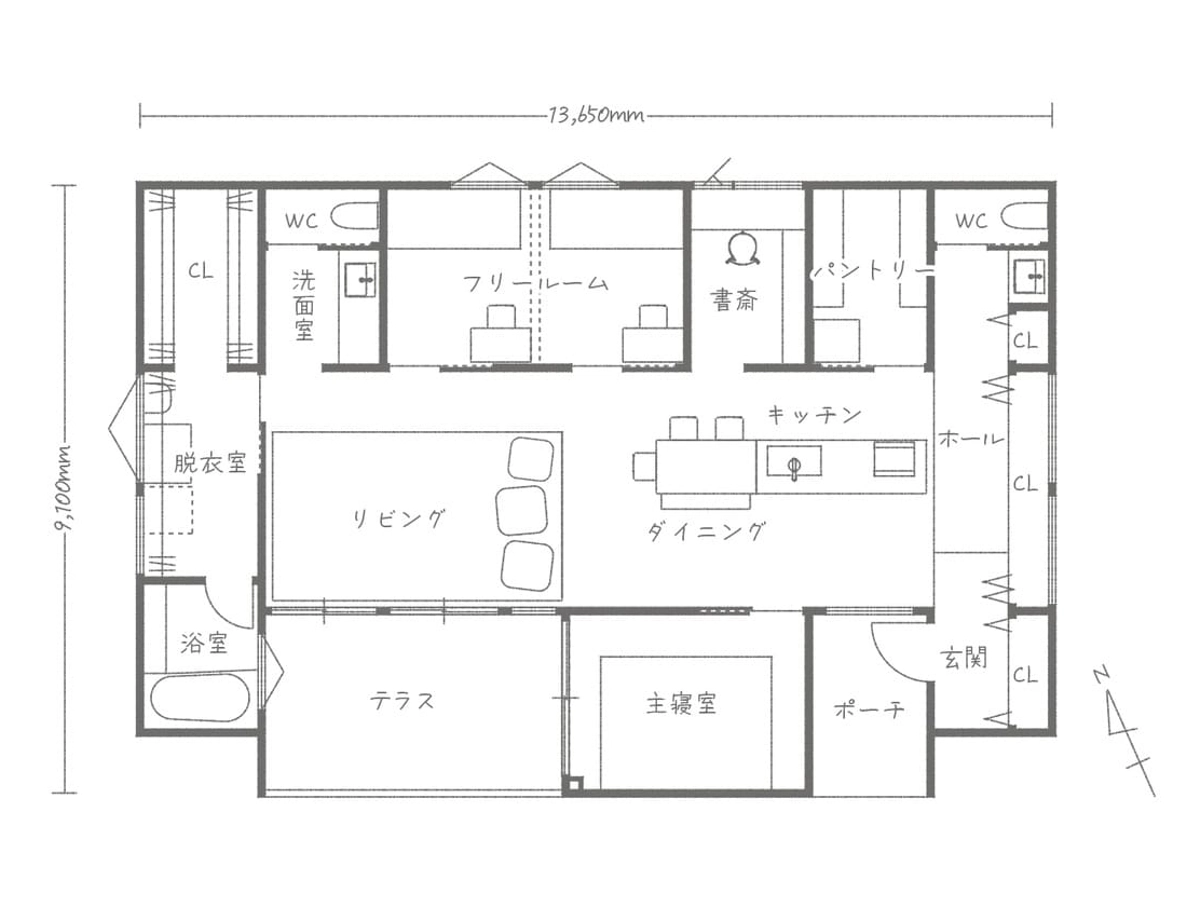
2階の間取り図(生活動線・来客動線を考えた回遊動線の家)
写真⑯2階の間取り図(生活動線・来客動線を考えた回遊動線の家).jpg 37.01 KB
こちらは2階の間取り図です。来客は玄関から階段を通って2階のリビング、ダイニングへ行けるため、水回りや寝室などのプライベート空間を避けられます。水回りや寝室を来客に見せない動線は、人を家に上げるハードルを下げてくれる間取りと言えるでしょう。

>>施工事例:愛知県安城市「スミキリハウス」
リビング、ダイニングとのつながりが感じられるキッチン
写真⑰リビング、ダイニングとのつながりが感じられるキッチン.jpg 46.16 KB
こちらは、家の中心にリビングを配置したコの字型の回遊動線を持つ住宅。キッチンで作業をしているときも、リビング、ダイニングとのつながりが感じられ、家族を見守りながら家事がしやすい間取りになっています。キッチン横のダイニングテーブルは、配膳・片付けが楽な配置です。
冷蔵庫を置いたパントリースペース
写真⑱冷蔵庫を置いたパントリースペース.jpg 46.91 KB
キッチン奥には、冷蔵庫を置いたパントリースペースが。生活感を隠してスタイリッシュなインテリアを実現しながら、家事もしやすいキッチンとなっています。
ブラックなアイアンがアクセンの白い洗濯室
写真⑲ブラックなアイアンがアクセンの白い洗濯室.jpg 46.46 KB
キッチンすぐ横の洗濯室は、ブラックなアイアンがアクセントとなった白い空間。広々として作業がしやすく、収納も大容量です。

>>施工事例:愛知県田原市「家族が寄り添う平屋の家」
ランドリースペースとファミリークローゼット
写真⑳ランドリースペースとファミリークローゼット.jpg 62.83 KB
こちらは限られたスペースを有効活用した、ランドリースペースとファミリークローゼット。物干しパイプを上部に、下には洗濯物たたみ、アイロンがけができるカウンター、家族の衣類をしまう引き出しを配置しました。洗濯物が乾いたら、隣接するファミリークローゼットに直行し、収納できます。家族が多く、洗濯物の負担が大きい家庭だからこそ、家事のしやすい間取りにすることの効果は大きいと言えるでしょう。

>>施工事例:京都府京丹後市「広い土間リビングの家」
収納スペースをたっぷり確保した玄関土間
写真㉑収納スペースをたっぷり確保した玄関土間.jpg 96.9 KB
こちらは生活動線上にそれぞれ収納スペースをたっぷり確保した家。玄関土間には家族の趣味の道具をしっかりと収納できます。ゴルフ用品、キャンプ用品、子どもの遊び用の乗り物なども、お出かけの際にさっと持って行けるでしょう。
ガラスの引き戸式パントリー
写真㉒ガラスの引き戸式パントリー.jpg 82.04 KB
キッチンの背面にはすりガラスの引き戸式パントリー。リビング横には棚と、ものを使用する場所に保管できます。ものを探し回る手間がかからず、生活がしやすい家と言えるでしょう。

>>施工事例:静岡県沼津市「プライバシーに配慮した大屋根の家」

>>参考コラム:注文住宅ならこだわりのキッチンにしたい!失敗しない選び方やアイデア実例をご紹介
家事動線を意識した4人家族の平屋の間取り図
写真㉓家事動線を意識した4人家族の平屋の間取り図.jpg 50.8 KB
こちらは、家事動線を意識した4人家族の平屋。玄関横に長いホールを設け、大容量の収納と、来客が使いやすいトイレを設けています。ホールから直接キッチンにアクセスできるため、購入した食料品などをスムーズに運び入れられます。
横につなげたキッチンとダイニング
写真㉔横につなげたキッチンとダイニング.jpg 77.84 KB
キッチンとダイニングは横につなげることで、配膳・片付けの負担を軽減。キッチン裏には大容量のパントリー、書斎を設け、書類や食料、日用品でリビングやキッチンが散らからないよう配慮しています。
ランドリースペースを兼ねた脱衣所
写真㉕ランドリースペースを兼ねた脱衣所.jpg 60.12 KB
ランドリースペースを兼ねた脱衣所はファミリークローゼットと浴室の間に設置。入浴から洗濯、乾燥、収納がしやすいつくりです。また、脱衣所と洗面室を分けたつくりになっており、脱衣所には手洗い用の流し場を備え付けました。家族の入浴時や、来客時も独立した洗面室があれば、プライベートな脱衣所に入らずに手洗いができるのです。

>>施工事例:茨城県神栖市「計算尽くされた生活動線と収納が叶えた 快適な暮らし」
ダイニング横にあるワークスペースとしても使用できるカウンター
写真㉖ダイニング横にあるワークスペースとしても使用できるカウンター.jpg 64.66 KB
こちらの住宅は子ども4人を含む8人家族が暮らす、家事動線を考えた住宅です。吹き抜けのある開放的なダイニングの横に、ワークスペースとしても使用できるカウンターをつくりました。
ワインセラーや収納を兼ねたアイランド型のカウンターのあるキッチン
写真㉗ワインセラーや収納を兼ねたアイランド型のカウンターのあるキッチン.jpg 61.17 KB
キッチンにはアイランド型のカウンターを設置し、ワインセラーや収納を兼ねています。壁付けのキッチンは家族が集まっても混雑しにくい回遊動線に。
夫婦の寝室の手前にある大容量ファミリークローゼット
写真㉘夫婦の寝室の手前にある大容量ファミリークローゼット.jpg 97.86 KB
夫婦の寝室の手前には、家族全員の衣類を置けるファミリークローゼットを配置。家族全員の衣類を一カ所で管理できる大容量を確保し、衣替えも不要です。洗濯乾燥した衣類はここにまとめてもってきて収納できるため、家事がラクに。

>>施工事例:兵庫県淡路市「中庭と繋がる美術館のような家」
室内への2つの入り口をもつ玄関
写真㉙室内への2つの入り口をもつ玄関.jpeg 63.08 KB
こちらの住宅は、中庭がある、ロの字型をした回遊動線の家。玄関から室内へは2つの入り口があります。ひとつは通常の玄関ホールへ行く入口で、もうひとつはシューズクローゼットからウォークインクローゼットを通る入口です。
シューズクローゼットからつづくウォークインクローゼット
写真㉚シューズクローゼットからつづくウォークインクローゼット.jpeg 80.74 KB
シューズクローゼットにはゴルフ用品や季節用品も置けます。また、シューズクローゼットからつづくウォークインクローゼットは、家族の洋服を入れられるようにじゅうぶんな広さを確保しました。家族の持ち物を一括して管理できるため、洗濯した衣類を収納する際も便利です。また、季節用品の手入れや管理も楽にできます。

>>施工事例:千葉県千葉市「中庭と共に暮らす家」
2階に水回りを集約した家事・育児がしやすい動線の家の2階の見取り図
写真㉛2階に水回りを集約した家事・育児がしやすい動線の家の2階の見取り図.jpg 38.75 KB
こちらの住宅は、3階建ての2階部分にキッチン、脱衣所兼ランドリースペース、浴室と水回りを集約させることで、家事をしやすい家になりました。
キッチンと大容量のパントリー
写真㉜キッチンと大容量のパントリー.jpg 63.33 KB
キッチンと大容量のパントリーは隣接しており、食料品の管理、運用がしやすくなっています。また、キッチンで作業中も、リビングやダイニング、ワークスペースで過ごす子どもを見守れます。
脱衣所兼ランドリースペース
写真㉝脱衣所兼ランドリースペース.jpg 79.05 KB
脱衣所兼ランドリースペースは、洗濯機、乾燥機、脱衣カゴ、除湿器、物干しパイプ、アイロンがけスペース、収納を完備。洗濯・乾燥・収納がすべてここで完結するつくりです。
洗濯・乾燥・収納がすべてここで完結するランドリースペース
写真㉞洗濯・乾燥・収納がすべてここで完結するランドリースペース.jpg 76.16 KB
衣類だけでなく、小物や洗濯用品も一括で収納できるため、家事の負担が減らせます。乾燥が終わった洗濯物を、家族の個室に運ぶ必要がないため、家事の負担を減らせる構造と言えるでしょう。

>>施工事例:東京都港区「やわらかな光と風が巡る家」
今回は家事動線がいい間取りの家づくりについて解説しました。是非、家づくりの参考にしてください。R+houseネットワークの工務店では、お施主さまのライフスタイルや要望に合わせた家づくりを、手の届く価格で提供しています。家事のしやすい家をかなえたい方は、是非R+houseネットワークの工務店へお問い合わせください。完成見学会やモデルハウス見学会、家づくりの勉強会も随時開催中です。皆様からの積極的なお問い合わせを、心よりお待ちしております。

>>家事動線にこだわったマイホームが建てられる!R+houseのデザインについてはこちら

R+houseについてさらに詳しく知りたい方は

間取りのヒント
「間取りのヒント」のコラムをもっと見る
施工事例リンク

「間取りのヒント」のコラムでよく読まれています

家事動線がいい間取りの家とは?【施工事例12選】家事が楽になるアイデアも!

家事動線がいい間取りの家とは?【施工事例12選】家事が楽になるアイデアも!

2025.03.24
南向き間取りとは?日当たりが良い注文住宅の間取りや事例も紹介

南向き間取りとは?日当たりが良い注文住宅の間取りや事例も紹介

2024.04.26
20坪台の間取り事例をご紹介!注文住宅で取り入れたい工夫や注意点とは?

20坪台の間取り事例をご紹介!注文住宅で取り入れたい工夫や注意点とは?

2025.03.20
30坪で理想の間取りに!参考になる実例や家事ラクのポイントをご紹介

30坪で理想の間取りに!参考になる実例や家事ラクのポイントをご紹介

2025.02.17
【ルームツアー】細長い狭小地に建てた28坪の和モダンな平屋

【ルームツアー】細長い狭小地に建てた28坪の和モダンな平屋

動画
2024.11.22
回遊動線とは?注文住宅で回遊動線を取り入れた間取りを設計する際のポイント

回遊動線とは?注文住宅で回遊動線を取り入れた間取りを設計する際のポイント

2025.10.16

カテゴリからコラムを探す

デザインのヒント
デザインのヒント
スタイル・暮らしのヒント
スタイル・暮らしのヒント
設備・性能
設備・性能
間取りのヒント
間取りのヒント
家と周辺環境
家と周辺環境
注文住宅の基礎知識
注文住宅の基礎知識
個性が見える施工事例
個性が見える施工事例
お金と住まい
お金と住まい
カタログ請求
イベント検索
工務店無料相談