R+houseネットワーク
メニュー 閉じる
間取りのヒント

南向き間取りとは?日当たりが良い注文住宅の間取りや事例も紹介

更新日 2025.06.27 / 公開日 2024.04.26
#2階建て #新築 #一戸建て #マイホーム #注文住宅

南向き間取りとは、テラスやリビングの開口部・メインとなる窓が南を向いている間取りのことで、家の日当たりを重視したい方におすすめの間取りです。今回は、日当たりの良い家や南向き間取りのメリットやデメリットなどをご紹介します。R+houseが手掛けた注文住宅の施工事例も紹介しますので、間取りや写真をチェックして今後の家づくりにお役立てください。

木目のリビングとタイル床の階段
目次
森の中の小さな家
写真②森の中の小さな家 (1).jpg 96.75 KB

「日当たり」の良し悪しは、何を根拠に決められているのでしょうか。実は一般的にいわれる「日当たりの良さ」に明確な定義はなく、基準は住宅や土地を提供する会社それぞれに委ねられているのです。
まずは、日当たりの良し悪しの指標にされることが多い言葉を紹介します。

日照時間

日当たりの良し悪しの指標になる言葉の1つに「日照時間」があります。気象学では「1日のうちにどれだけ太陽が照っているか」を示すものになりますが、住宅業界においては「1日の中で窓などに日光が当たっている時間」を示すものになります。

日射量

日射量は、太陽から地上に届く熱量のことを指しています。日当たりとは直接の関係はありませんが、太陽光発電などの計算指標として利用されます。

採光

採光とは、建物の中へ自然光を取り入れることを指しています。建築基準法では、建物に対して採光のための窓その他の開口部を定められた割合以上の面積で設けることが義務づけられており、採光計画を適切に取り入れることが重要です。

日影図

日影図は、建物が作る影を配置図に書き込んだ図で、日当たりを示す指標として用いられます。日影図から、周辺建物によって影になる位置と時間が把握できます。工務店や建築事務所では、プランニングの際に提示されることもあるでしょう。
メリットを話すにこにこマーク
写真③メリットを話すにこにこマーク-min.jpg 94.81 KB

日当たりが良い住宅には以下のようなメリットがあります。

・部屋が明るくなりやすい
・寒い季節も室内が暖かくなりやすい
・生体リズムが整いやすい
・洗濯物が乾きやすい
・湿気がこもりにくい


上記のようなメリットがあるため、家づくりの際は日当たりの良さを気にする方が多いのでしょう。一方で、夏は部屋が暑くなりやすい、家具や床が日焼けしやすい、土地の値段が高い傾向にある、といったデメリットもあります。
建築家の図面作成の様子
写真④建築家の図面作成の様子 (1).jpg 93.66 KB

注文住宅を建てる方は、方角を意識して間取りを検討しましょう。とくに日当たりを重視したい方には、テラスやリビングの開口部・メインとなる窓が南を向いている、南向き間取りがおすすめです。しかし、周辺環境によっては南向き以外の間取りの方が良い場合もありますので、建築を依頼する住宅会社に相談しながら検討しましょう。
南向き間取りにはメリットだけでなく、デメリットもあります。下記に南向き間取りのメリットとデメリットを表にまとめたので、ぜひ参考にしてください。

南向き間取りのメリット 南向き間取りのデメリット
・どの季節も日が当たる時間が長い
・洗濯物がよく乾く
・日中でも室内が明るく、照明が不要
・冬でも日が当たるため暖房費の節約になる
・夏は日中の室温が上がり暑くなる※
・夏はエアコンが欠かせず冷房費がかかる※ (※適切な日射遮蔽装置を設置しなかった場合)
・日差しによってリビングの床や家具が日焼けしやすい
・テレビや本を見るとき眩しく感じることがある


リビングを南向きに配置した間取りでは、南側に高い建物がなければ日当たりが良く、日中は照明が不要なくらい明るい部屋になるでしょう。一方、テラスや2階のベランダを南向きに配置した住宅は、夏は室温が高くなりやすく、冷房費がかかることが懸念されますが、これは適切な日射遮蔽装置を設置することで軽減することができます。また、日差しが直接当たるカーテンやリビングの床(フローリング)は日焼けしやすく、劣化を早めてしまう可能性も。その他にも、1階を南向きにすることで周辺環境によっては「外からの視線が気になる」という声も聞かれます。
住宅のメリットとデメリット 背景が葉っぱ
写真⑤住宅のメリットとデメリット 背景が葉っぱ-min.jpg 87.91 KB

「誰にとっても南向き間取りが一番良い」というわけではありません。自分やご家族のライフスタイルに合った間取りを選ぶことが大切です。ここからは、南向き以外の方角について、日差しが入る時間帯とそれぞれの特徴をご紹介します。
北向きの部屋は、日中に直射日光の当たる時間がありません。北向きの部屋・住宅は敬遠されがちですが、部屋の温度が上がり過ぎず、とくに夏は快適に過ごせるでしょう。また、年間・一日を通して、外からは柔らかい明るさを得られます。明るさが安定しているため、アトリエなどの作業部屋や仕事部屋を配置するのにも向いています。
西向きの部屋は、午後から夕方にかけて日が当たります。西日がきつい印象もありますが、朝日はゆっくり起床したい方や、夜勤などで早朝から午前中に在宅していない方におすすめです。
東向きの部屋は、朝から午前中にかけてたっぷりと日が降り注ぎます。一方で暗くなるのが早いので、夕方や夏の午後は比較的快適に過ごせるでしょう。朝から活動したい方や午後に外出する方におすすめです。
住宅メーカー
写真⑥住宅メーカー (1).jpg 61.61 KB

日当たりの良い南向き間取りの住宅は人気がありますが、前述したようにデメリットもあります。南向き間取りをつくるためには、どのような部屋の配置が良いのでしょうか。南向きの間取りをつくるときに取り入れたい、アイデアをご紹介します。
やはり最も日当たりの良い南側には、家族が集まるメインのリビングを設けると良いでしょう。日中に明るく暖かな状態が保たれるため、家で過ごす時間が長い方や小さい子どもがいる家庭には南向きのリビングがおすすめです。また、日当たりが良いため、リビングの南側にはテラスやデッキなど、洗濯物が干せるスペースを設ける方が多くなっています。
寝室やキッチンは、朝日が当たる東側に設けるのがおすすめです。朝から太陽を浴びると体内時計がリセットされて、気持ち良く目覚められるでしょう。また、東側の部屋は早い段階で日が当たらなくなるため、夏の暑さが苦手な方にも適しています。
西側の部屋は午後に西日が当たるので、夕方にかけて使わない部屋を西に設けると良いでしょう。一方で、午前中には落ち着いたやわらかい日差しが入り、勉強などがはかどる環境のため、子ども部屋にも適しています。
北側の部屋は直射日光が当たりにくく涼しい環境が保たれるため、食材を保管するパントリーや書斎を設けるのに適しています。また、日光によって変色しがちな本や衣類などを保管する場所としてもおすすめです。
日当たりを確保しようと住宅の南側に窓を設けると、人目につきやすくなる場合があります。このようなリスクを解消するために、道路側には目隠しできる塀や格子や道路から距離を取れる駐車場を設けるのがおすすめです。
R+houseでは、建築家がライフスタイルや生活導線、土地や地域など周辺環境を考慮して、お客様に合った間取りをご提案いたします。ここでは、全国のR+houseネットワークの工務店が手掛けた間取りの一例をご紹介します。
こちらは千葉県千葉市にある、敷地面積172.29㎡(54.24坪)の2階建ての注文住宅です。高台にある土地を活かして「日当たりが良く、プライバシーの配慮もできる家を建てたい」というお施主様の希望を叶えた間取りになっています。
写真②二階の間取り図.jpg
写真②二階の間取り図.jpg 42.1 KB

二階の間取り図
写真②二階の間取り図.jpg 42.1 KB
1階の南側に中庭と玄関、そしてメインのリビングを配置。リビングダイニングには、中庭にある大きな掃き出し窓から日差しがたっぷりと差し込みます。
ハンモックのある中庭
写真③ハンモックのある中庭.jpeg 79.92 KB
中庭は壁で囲われており、外からの視線もしっかり遮られています。プライバシーが保たれた、家族だけの特別な空間です。
大きな窓や吹き抜けの高窓からたっぷりと光が入り込むリビング
写真④大きな窓や吹き抜けの高窓からたっぷりと光が入り込むリビング.jpg 80.89 KB
中庭に面した大きな窓や吹き抜けの高窓から、たっぷりと光が入り込むリビング。日中は、照明をつけずに過ごせる上に、カーテンなしでも外からの視線が気にならない設計となっています。
白と木目ですっきりとした印象のLDK
写真⑤白と木目ですっきりとした印象のLDK.jpeg 66.02 KB
道路や隣の家からの視線が気になる場合には、こちらの事例のように壁や塀で目隠しをつくるなど、視線を遮ぎるような工夫を取り入れた間取りがおすすめです。

また、吹き抜けをつくることで、部屋に対して設置できる窓の面積が増やせるため、高い位置の窓からの採光を期待できます。高窓を設けることで、開放感たっぷりの明るい部屋になりました。

>>施工事例:千葉県千葉市「桜の見える中庭のある家」
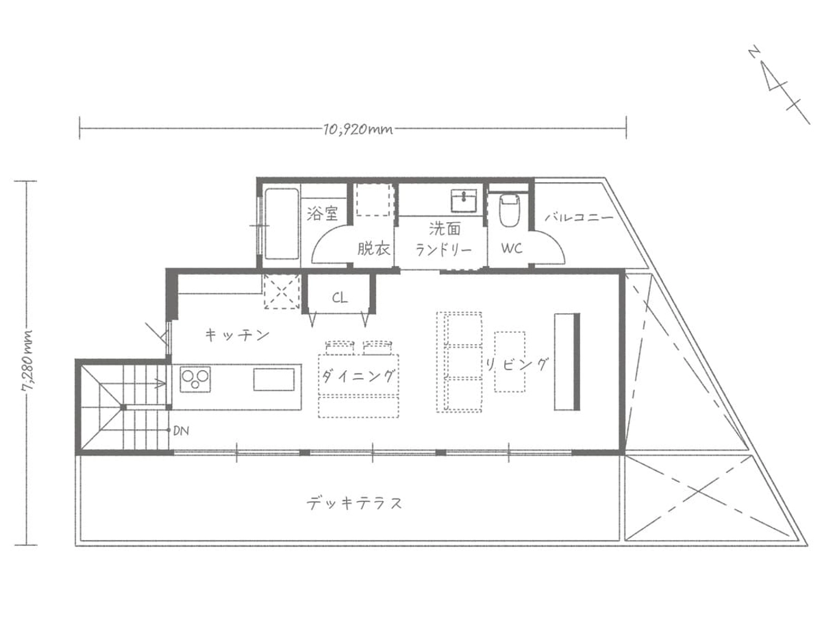
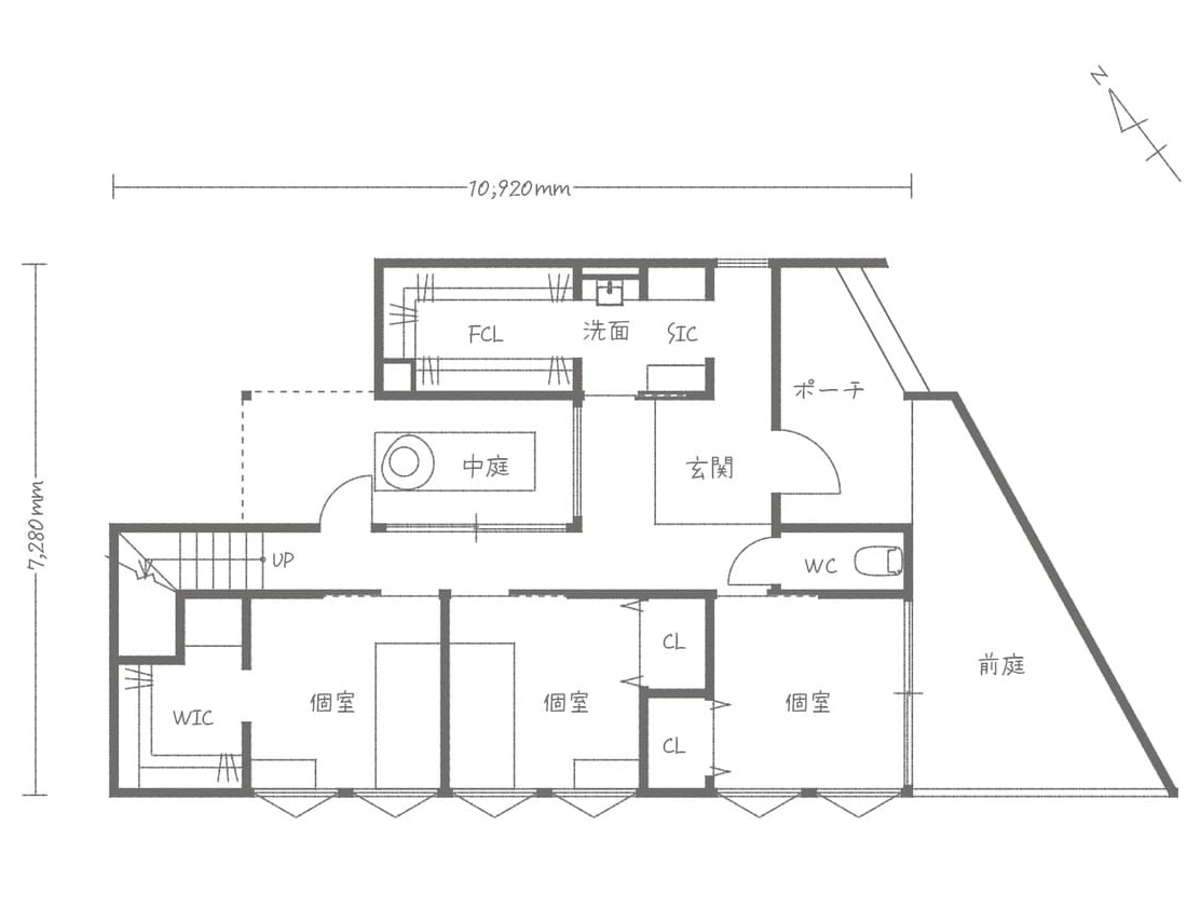
続いて紹介するのは、岐阜県多治見市にある、敷地面積209.69㎡(63.43坪)の2階建て注文住宅です。南側に眺望が開けた斜面地にあり、見晴らしの良い風景を活かして2階にリビングをつくりました。間取りは下記のとおりです。
個室と前庭・中庭のある一階間取り図
写真⑥個室と前庭・中庭のある一階間取り図.jpg 40.61 KB

二階リビングのある間取り図
写真⑦二階リビングのある間取り図.jpg 43.83 KB
1階にはそれぞれの個室と接続した前庭と中庭を設け、どこの部屋にいても自然を感じられる空間が意識されています。
個室から見る前庭
写真⑧個室から見る前庭.jpg 84.28 KB
こちらは、1階の前庭と接続した個室です。外からの視線を遮りながらも、高い位置に設置した窓からはやわらかな光が差し込みます。プライバシーが守られつつも、解放感のある空間に仕上がりました。
多治見盆地が一望できるリビング
写真⑨多治見盆地が一望できるリビング.jpg 89.57 KB
2階リビングの大きな窓からは、多治見盆地が一望できます。目線を遮ることのない街の絶景を楽しめるのは、2階リビングだからこそ叶えられた贅沢です。
リビング横に設置された広いタイルデッキ
写真⑩リビング横に設置された広いタイルデッキ.jpg 89.97 KB
リビングの南側には、広いタイルデッキを配置。たっぷりと気持ちの良い日差しが、リビングダイニングに降り注ぎます。夏の日差しを軽減するために掃き出し窓のガラスは「真空トリプルガラス」を取り入れ、ブラインドも設置しました。また、部屋の温度が上がっても対応できるように、床下エアコンを採用しています。高断熱、高性能な窓や設備を取り入れたことで、一年中快適に過ごせる理想的な家を実現できました。

>>施工事例:岐阜県多治見市「Terrain parallels [地形の平行線]」
白と木目の外壁に植栽豊かな外観
写真⑦福岡県_白と木目の外壁に植栽豊かな外観 (1).jpg 547.5 KB

注文住宅を建てるときに、南向きにテラスやリビングを配置する間取りを取り入れると、日当たりが良く部屋が明るくなるなどのメリットがあります。しかし、夏は部屋が暑くなり過ぎたり、外からの視線が気になったりするなどのデメリットも。日当たりや部屋の明るさを重視して家づくりをするときには、各部屋の方角や窓の位置など周辺環境を考慮した間取りを検討しましょう。R+houseでは、ライフスタイルや周辺環境を考慮した間取りを建築家からご提案いたします。「南向き間取りの家を建てたい」「南向きの部屋のデメリットをカバーする工夫を知りたい」という方は、ぜひ全国のR+houseネットワークの工務店にご相談ください。

>>日当たりも意識された建築家とつくるおしゃれな注文住宅「R+house」についてはこちら

R+houseについてさらに詳しく知りたい方は

間取りのヒント
「間取りのヒント」のコラムをもっと見る
施工事例リンク

「間取りのヒント」のコラムでよく読まれています

家事動線がいい間取りの家とは?【施工事例12選】家事が楽になるアイデアも!

家事動線がいい間取りの家とは?【施工事例12選】家事が楽になるアイデアも!

2025.03.24
南向き間取りとは?日当たりが良い注文住宅の間取りや事例も紹介

南向き間取りとは?日当たりが良い注文住宅の間取りや事例も紹介

2024.04.26
20坪台の間取り事例をご紹介!注文住宅で取り入れたい工夫や注意点とは?

20坪台の間取り事例をご紹介!注文住宅で取り入れたい工夫や注意点とは?

2025.03.20
30坪で理想の間取りに!参考になる実例や家事ラクのポイントをご紹介

30坪で理想の間取りに!参考になる実例や家事ラクのポイントをご紹介

2025.02.17
【ルームツアー】細長い狭小地に建てた28坪の和モダンな平屋

【ルームツアー】細長い狭小地に建てた28坪の和モダンな平屋

動画
2024.11.22
回遊動線とは?注文住宅で回遊動線を取り入れた間取りを設計する際のポイント

回遊動線とは?注文住宅で回遊動線を取り入れた間取りを設計する際のポイント

2025.10.16

カテゴリからコラムを探す

デザインのヒント
デザインのヒント
スタイル・暮らしのヒント
スタイル・暮らしのヒント
設備・性能
設備・性能
間取りのヒント
間取りのヒント
家と周辺環境
家と周辺環境
注文住宅の基礎知識
注文住宅の基礎知識
個性が見える施工事例
個性が見える施工事例
お金と住まい
お金と住まい
カタログ請求
イベント検索
工務店無料相談