R+houseネットワーク
メニュー 閉じる
個性が見える施工事例

平屋を20坪台で建てる間取りとは?施工事例18選

更新日 2026.03.27 / 公開日 2026.03.10
#注文住宅 #新築 #一戸建て #マイホーム #平屋

平屋を20坪台で建てる際、どんな間取りが可能なのか気になるのではないでしょうか?20坪台の平屋はコンパクトで無駄がなく、コストを抑えやすいため、自分たちに合った暮らしを実現できる選択肢です。間取りや形状をどうするか気になる、という方は、実際の施工事例をチェックしてどのような住宅が自分に合っているかイメージしましょう。今回はR+houseネットワークの工務店が実際に手がけた、20坪台の平屋の施工事例18選を紹介します。ぜひ家づくりの参考にしてください。

黒い外壁に打ち放しコンクリートの門柱が映える平屋の外観
目次

びっくりマークが書かれた積み木
ALT_写真2-びっくりマークが書かれた積み木.jpg 44.12 KB
延床面積20坪台 (約66㎡~)の平屋はコンパクトなつくりのため、建築コストや光熱費を抑えやすい特徴があります。また、室内の動線が短く、家事の効率がいい点がメリットです。
ここでは20坪台の平屋をうまく建てる際のコツを紹介します。
20坪台の平屋では、LDKを中心として移動する無駄のない間取りがおすすめです。従来の平屋のように長い廊下をつくると居室が狭くなります。ほかにも、間取りの無駄がないか確認しながら、必要な広さを確保しましょう。

>>参考コラム:回遊動線とは?注文住宅で回遊動線を取り入れた間取りを設計する際のポイント
平屋は天井でふさがれるデッドスペースを小屋裏収納として有効活用するのがおすすめです。小屋裏収納は広い空間を確保しやすいため、季節の家電や使用頻度の少ない道具などを入れておくのに重宝します。
20坪台の平屋では、物を使う場所に適切な収納スペースをバランスよく設置することがポイント。家に大きな収納が一つ、という場合、必要なときに物をサッと取り出せずストレスになってしまうかもしれません。玄関、LDK、各居室で使うものに合った収納をつくるのがおすすめです。
20坪台の平屋は、勾配天井や吹き抜けをつくることで同じ床面積でも視線が抜けやすいため、開放感が得られます。圧迫感がなく、広々と感じられる家は、居心地よく快適です。

ただし、勾配天井や吹き抜けで大空間をつくった場合は、冷暖房効率が下がりやすいため、建物の断熱性を高める必要があります。高断熱・高気密の住宅性能にこだわり、夏も冬も快適に過ごせる家に仕上げましょう。

>>参考コラム:注文住宅にはなぜりんご型の間取りが良い?メリットや設計時の注意点を解説
ここからは、R+houseネットワークの工務店が実際に手がけた施工事例を紹介します。R+houseネットワークでは提携建築家がデザインを担当しているため、お施主様の暮らしに合った家を建てられます。実際の施工事例をチェックして、どんな家に住みたいかイメージしてみましょう。

グレーの外壁に寄棟屋根を載せたモダンな平屋の外観
ALT_写真3-グレーの外壁に寄棟屋根を載せたモダンな平屋の外観.jpg 238.21 KB
こちらは4方向に傾斜を持つ寄棟屋根(よせむねやね)の平屋。間口に対して奥行きが深い形状です。
勾配天井の板張りと間接照明が美しい開放的なLDK
ALT_写真4-勾配天井の板張りと間接照明が美しい開放的なLDK.jpg 273.98 KB
LDKは一部が勾配天井になっており、開放感のある空間。梁の間にラワン合板を張って木のあたたかみをプラスしました。
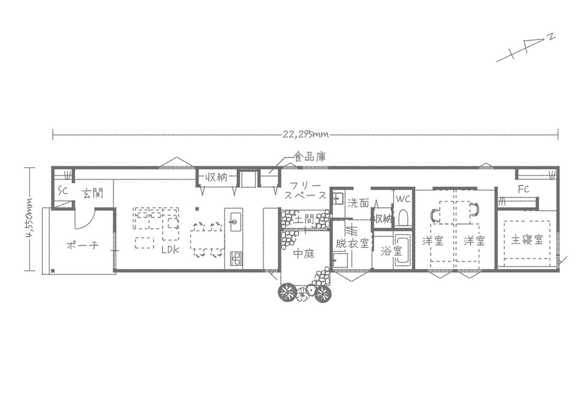
中庭を囲む間取りの細長い平屋住宅の平面図
ALT_写真5-中庭を囲む間取りの細長い平屋住宅の平面図.jpg 85.16 KB
縦に長い敷地を活かし、LDKと水回り、個室、寝室エリアの間に中庭を設けています。昔ながらの長屋を現代風にアレンジした住宅です。

・エリア 愛知県
・敷地面積 65.16坪(215.41㎡)
・延床面積 27.78坪(91.85㎡)

>>施工事例:愛知県北名古屋市「modern長屋」

>>参考コラム:勾配天井のメリット・デメリットは?取り入れる際のポイントや施工事例10選を紹介!

青空に映える片流れ屋根のグレーの外壁と広いカースペース
ALT_写真6-青空に映える片流れ屋根のグレーの外壁と広いカースペース.jpg 151.35 KB
グレーで統一した外壁に、屋根、ドア、カーポートのブラックが映えるシンプルモダンな家です。道路に面した玄関側は窓を排除してプライバシーに配慮しています。
黒いペンダントライトが映えるシックなアイランドキッチン
ALT_写真7-黒いペンダントライトが映えるシックなアイランドキッチン.jpg 140.18 KB
LDKはモノトーンでまとめ、シンプルで落ち着いた空間に。家族が集う広々空間を確保しています。
回遊動線と充実した収納を備えた3LDKの平屋間取り図
ALT_写真8-回遊動線と充実した収納を備えた3LDKの平屋間取り図.jpg 97.99 KB
家の中心にLDKを配置し、廊下をつくらない間取りにすることで、限られた面積を有効活用しています。

・エリア 茨城県
・敷地面積 81.09坪(268.06㎡)
・延床面積 29.05坪(96.05㎡)

>>施工事例:茨城県神栖市「家族が望んだ大空間と自慢の回遊動線」

>>参考コラム:おしゃれなLDKの施工事例15選!間取りを決めるポイントも解説

木目の軒下デッキで寛ぐ家族と平屋の外観
ALT_写真9-木目の軒下デッキで寛ぐ家族と平屋の外観.jpg 338.83 KB
LDKとつながる広々としたウッドデッキに、大きな軒天と袖壁が囲むような形のテラスが自慢の住宅。深い庇(ひさし)があるため、日差しを避け、快適に暮らせます。
大きな窓から光が差し込む明るいリビングダイニング
ALT_写真10-大きな窓から光が差し込む明るいリビングダイニング.jpg 163.62 KB
手前からキッチン、ダイニング、リビングとつながり、奥の腰壁の向こうにはスタディコーナーがあります。壁面の造作壁には、子どものカバンや荷物を収納可能です。
木の収納と清潔感のある造作洗面台が並ぶ玄関ホール
ALT_写真11-木の収納と清潔感のある造作洗面台が並ぶ玄関ホール.jpg 124.81 KB
玄関を入って左手に向かうとLDKに、右手に向かうと寝室や水回りなどのプライベートスペースに続く間取りです。帰宅後すぐに手を洗えるよう、洗面スペースは玄関前に独立して配置しています。

・エリア 愛知県
・敷地面積 220.13坪(727.72㎡)
・延床面積 29.05坪(96.05㎡)

>>施工事例:愛知県蒲郡市「広がり溢れる 外観が心地よい平屋」

>>参考コラム:おしゃれなテラス&デッキ18選!デザイン性を高くするポイントとは

豊かな緑を背景に佇むビルトインガレージのある白い平屋
ALT_写真12-豊かな緑を背景に佇むビルトインガレージのある白い平屋.jpg 409.12 KB
森を望む広い敷地に建つ平屋。白い外壁、板張りの壁に石積みのガビオン(※)が映え、美術館のような非日常感があります。雨の日も濡れずに室内に入れるガレージが便利です。
※ガビオン:メッシュ状の金属カゴに自然石を詰めたもの
大きな窓から緑が見える開放的なLDKとキッチン
ALT_写真13-大きな窓から緑が見える開放的なLDKとキッチン.jpg 201.96 KB
LDKには森を望む大開口の掃き出し窓を設置し、いつでも自然を眺めながら生活ができます。子育てを終えたお施主様のコンパクトな暮らしがかなう家です。
間接照明が美しい洗面コーナーと清潔感のあるバスルーム
ALT_写真14-間接照明が美しい洗面コーナーと清潔感のあるバスルーム.jpg 149.65 KB
浴室、洗面、ランドリースペースは一直線につなげて家事がラクにできる動線を意識しています。洗面コーナーには高窓と地窓を取りつけ、明るくスタイリッシュでホテルライクな印象に仕上げました。

・エリア 長野県
・敷地面積 255.79坪(845.61㎡)
・延床面積 22.04坪(72.87㎡)

>>施工事例:長野県小諸市「非日常を愉しむ美術館のような家」

>>参考コラム:おしゃれなガレージのタイプは?実際の事例や種類・特徴を紹介

木のフェンスに囲まれた落ち着きのある平屋の外観
ALT_写真15-木のフェンスに囲まれた落ち着きのある平屋の外観.jpg 284.59 KB
周囲に立ち並ぶ昔ながらの住宅街に溶け込むような、和モダンの平屋。
ウッドデッキと繋がる大きな開口部を持つ明るいリビング
ALT_写真16-ウッドデッキと繋がる大きな開口部を持つ明るいリビング.jpg 226.02 KB
天井と軒天、床とウッドデッキがゆるやかにつながり、延床面積以上の広さが感じられるLDKです。
木の温もりを感じるダイニングテーブルと機能的なキッチン
ALT_写真17-木の温もりを感じるダイニングテーブルと機能的なキッチン.jpg 154.41 KB
ダイニングキッチンは家の中心に配置。すべての部屋へアクセスがよく、家事の効率がいい間取りです。

・エリア 岐阜県
・敷地面積 60.36坪(199.54㎡)
・延床面積 24.29坪(80.32㎡)

>>施工事例:岐阜県高山市「風景に溶け込むコンパクト平屋」

夕暮れ時の芝生の庭とウッドデッキがあるモダンな住宅
ALT_写真18-夕暮れ時の芝生の庭とウッドデッキがあるモダンな住宅.jpg 156.63 KB
約7m×36mの南北に細い敷地を活かし、愛犬が思いっきり遊べるドッグランをつくった平屋。LDKからウッドデッキ、庭へ下りやすい設計です。

大きな窓から光が差し込むおもちゃいっぱいのキッズルーム
ALT_写真19-大きな窓から光が差し込むおもちゃいっぱいのキッズルーム.jpg 220.33 KB
目隠しフェンスがあるため、大開口の窓をつくってもカーテンなしで快適に過ごせます。

グレーの壁と円形テーブルが映えるモダンなダイニング
ALT_写真20-グレーの壁と円形テーブルが映えるモダンなダイニング.jpg 168.56 KB
キッチンからはリビング、ダイニング、壁際のスタディスペース、庭が望め、愛犬や子どもたちを見守りながら料理ができます。キッチンの背後はファミリークローゼット、ランドリーに接続しており、家事効率のいい間取りです。

・エリア 岐阜県
・敷地面積 80.79坪(267.09㎡)
・延床面積 27.36坪(90.46㎡)

>>施工事例:岐阜県岐阜市「外構の壁で敷地を最大限に活かす家」

>>参考コラム:ペットと暮らす家にはどんな工夫が必要?愛犬・愛猫が快適に暮らせる家の実例も紹介

切妻屋根を模した開口部が印象的な白い平屋の外観
ALT_写真21-切妻屋根を模した開口部が印象的な白い平屋の外観.jpg 145.78 KB
白い家型のゲートと、囲み庭がかわいらしい印象の平屋。囲み庭があることで、周囲の視線を避けながら、居室に光や風を取り入れることができます。
キッチンから見渡すスタディコーナーのある明るい室内
ALT_写真22-キッチンから見渡すスタディコーナーのある明るい室内.jpg 128.21 KB
ダイニングキッチンはあえてリビング空間と離し、料理や食事に集中できる間取りを取り入れました。
小上がりの畳コーナーで家族がくつろぐ開放的なリビング
ALT_写真23-小上がりの畳コーナーで家族がくつろぐ開放的なリビング.jpg 147.58 KB
リビングには小上がりの畳スペースを設けました。お昼寝スペースとして、ベンチとして便利に使えます。

・エリア 和歌山県
・敷地面積 64.71坪(213.93㎡)
・延床面積 26.92坪(89.02㎡)

>>施工事例:和歌山県和歌山市「囲み庭のある家」

>>参考コラム:庭をおしゃれにするコツと実用性を高めるポイントは?R+houseのおすすめ施工事例【25選】

モスグリーンの外壁に木目のアクセントが映える平屋の外観
ALT_写真24-モスグリーンの外壁に木目のアクセントが映える平屋の外観.jpg 220.99 KB
道路側の面に窓をなくすことで、プライバシーを守るとともに、緑色の外壁をより印象的にする平屋です。
ヘリンボーン柄の壁とペンダントライトが並ぶ対面キッチン
ALT_写真25-ヘリンボーン柄の壁とペンダントライトが並ぶ対面キッチン.jpg 157.26 KB
室内は水回りやキッチンを中央に配置した回遊動線を取り入れ、家事の効率がいい間取りです。キッチン、ダイニング、リビングと奥に流れるような広がりを感じられます。
窓辺のベンチ収納と食事の準備が整った木製ダイニング
ALT_写真26-窓辺のベンチ収納と食事の準備が整った木製ダイニング.jpg 180.6 KB
ダイニング横の日当たりのいい窓際には、ウインドウベンチを置き、家族がのびのびとくつろげるスペースを確保しました。

・エリア 長野県
・敷地面積 85.87坪(283.88㎡)
・延床面積 28.3坪(93.57㎡)

>>施工事例:長野県松本市「流れるようにスムーズに暮らすFLOW HOUSE」

>>参考コラム:ダイニングをおしゃれな空間に!おすすめの施工事例15選

白い外壁と深い軒の木目が美しいスタイリッシュな外観
ALT_写真27-白い外壁と深い軒の木目が美しいスタイリッシュな外観.jpg 173.91 KB
住宅密集地に建つコンパクトな平屋。シンプルで無機質な建物に、外壁の板張りや植栽が温かさをプラスしています。
白い壁と木目の床が続く開放的なキッチンのある通路
ALT_写真28-白い壁と木目の床が続く開放的なキッチンのある通路.jpg 127.51 KB
玄関から回遊できる間取りで、帰宅後すぐに手洗い、荷物の収納ができます。キッチンカウンターは高めにして、手元を隠して生活感が見えないよう配慮されています。
中庭の緑を望む大きな窓があるモダンなリビングダイニング
ALT_写真29-中庭の緑を望む大きな窓があるモダンなリビングダイニング.jpg 161.22 KB
中庭を囲むリビングは、庭に視線が抜けることで、実際の面積よりも広さを感じられる空間です。

・エリア 徳島県
・敷地面積 61.0坪(201.68㎡)
・延床面積 25.4坪(84.05㎡)

>>施工事例:徳島県板野郡松茂町「生活のリズムを満たす平屋」

>>参考コラム:中庭のある家の施工事例15選!メリットやデメリット、ポイントを解説

グレーの外壁に木目ドアが映える平屋とカーポートのある外観
ALT_写真30-グレーの外壁に木目ドアが映える平屋とカーポートのある外観.jpg 201.62 KB
中庭を囲むようなL字型の平屋。和モダンな印象の落ち着いた外観が魅力です。
可動棚に靴やバッグが整理された広々とした土間収納
ALT_写真31-可動棚に靴やバッグが整理された広々とした土間収納.jpg 209.31 KB
玄関を開けてすぐの位置に、靴や季節用品、趣味のキャンプ道具をたっぷり収納できるシューズクローゼットを配置。収納スペースをたっぷり確保しています。
小上がりの和室と対面キッチンがある明るいLDK
ALT_写真32-小上がりの和室と対面キッチンがある明るいLDK.jpg 148.48 KB
L字の角に沿って大開口の窓を配置することで、小上がりの和室スペース、LDKの両方に明るい光が届き、広さが感じられる間取りです。夕方まで照明なしでも明るく過ごせます。

・エリア 福岡県
・敷地面積 101.13坪(334.32㎡)
・延床面積 28.53坪(94.33㎡)

>>施工事例:福岡県宗像市「L型+庭の家」

白い外壁と植栽が調和する中庭のあるL字型の平屋
ALT_写真33-白い外壁と植栽が調和する中庭のあるL字型の平屋.jpg 225.61 KB
四季の移り変わりを感じられる前庭を囲むL字型の平屋。リビングと子ども部屋が庭に面しており、景色を眺めながら暮らせます。
勾配天井と化粧梁が特徴的な開放感あふれるリビングルーム
ALT_写真34-勾配天井と化粧梁が特徴的な開放感あふれるリビングルーム.jpg 152.73 KB
室内は平屋の特徴を活かした勾配天井で、開放感があります。キッチンから洗面脱衣所、ダイニング、ウォークインクローゼット、玄関のすべてにアクセスできる回遊動線で、家事や育児がラクになる間取りです。
リビングからテラスと庭の木々を望む大きな掃き出し窓
ALT_写真35-リビングからテラスと庭の木々を望む大きな掃き出し窓.jpg 281.15 KB
リビングにつながる木目の軒天が美しいテラスは、アウトドアリビングとしても使える、家族の憩いのスペースです。

・エリア 福岡県
・敷地面積 63.76坪(210.79㎡)
・延床面積 27.92坪(92.33㎡)

>>施工事例:福岡県宗像市「庭と暮らす 平屋の家」

黒いフレームの窓が並ぶスタイリッシュな平屋の正面外観
ALT_写真36-黒いフレームの窓が並ぶスタイリッシュな平屋の正面外観.jpg 288.7 KB
箱を連ねたような形の平屋。庇(ひさし)を深くとることで、暑い夏も日差しを避けて快適に暮らせます。外壁は自然に映える黒と白をチョイス。
玄関からリビングへ繋がる仕切りのない明るい室内空間
ALT_写真37-玄関からリビングへ繋がる仕切りのない明るい室内空間.jpg 126.52 KB
室内はコンパクトにまとまり、家事動線がいい間取りです。玄関からは直接リビングが見えないよう目隠し壁が設置されています。
大きな掃き出し窓から田園風景を望む明るい無垢床の室内
ALT_写真38-大きな掃き出し窓から田園風景を望む明るい無垢床の室内.jpg 164.39 KB
玄関土間をリビングと並行するように広く設置。庭とのつながりを持たせ、縁側のように使える空間になっています。子どもがつかまえた生き物を観察したり、室内干しをしたりと半外のように便利に使える空間です。

・エリア 岐阜県
・敷地面積 150.04坪(496.02㎡)
・延床面積 26.55坪(87.77㎡)

>>施工事例:岐阜県恵那市「土間からコミュニケーションが生まれる平屋の家」

>>参考コラム:土間玄関のおしゃれな施工事例12選!メリット・デメリットも解説

白い外壁にコンクリート塀が映える平屋のミニマルな外観
ALT_写真39-白い外壁にコンクリート塀が映える平屋のミニマルな外観.jpg 184.63 KB
白とグレーを基調としたシンプルモダンな印象の平屋。通路側には光を取り込む高窓のみが設置されており、室内の様子がうかがえないつくりです。
グレーの壁面にサーフボードを縦に並べて収納した土間空間
ALT_写真40-グレーの壁面にサーフボードを縦に並べて収納した土間空間.jpg 178.47 KB
玄関ホールは、お施主様の趣味であるサーフボードを置ける広さを確保。濡れたウェットスーツをかけられるフックも設置しました。シューズクローゼットも必要なものをしまえる容量を確保しています。
壁一面の書棚に漫画が並ぶ中庭に面した開放的なリビング
ALT_写真41-壁一面の書棚に漫画が並ぶ中庭に面した開放的なリビング.jpg 215.94 KB
リビングには2,000冊の蔵書を収納できる壁一面の造作本棚があります。高い壁で囲まれた中庭に面していることで、伸び伸びとくつろげる家になりました。

・エリア 千葉県
・敷地面積 109.89坪(363.30㎡)
・延床面積 23.21坪(76.73㎡)

>>施工事例:千葉県旭市「読書好きと猫が憩う中庭のある平屋」

>>参考コラム:趣味の部屋をおしゃれにレイアウト!おすすめの施工事例を15選ご紹介

枕木の小道が玄関へと続く落ち着いたグレーの外壁の平屋
ALT_写真42-枕木の小道が玄関へと続く落ち着いたグレーの外壁の平屋.jpg 278.53 KB
長方形の箱を南北に2つつなげたような形の平屋。LDKのある南棟は大きな窓を配置し、個室が多い北棟は窓を減らしてプライバシーに配慮しています。
玄関土間から居室へとシームレスに繋がる北欧風の内装
ALT_写真43-玄関土間から居室へとシームレスに繋がる北欧風の内装.jpg 160.62 KB
玄関ホールは土のような質感の真砂土(まさつち)仕上げの長い土間が個性的な空間。好きな絵を飾りたい、というお施主様の要望に応えたつくりで、ギャラリーのように活用される予定です。
黒いペンダントライトが下がる木目天板の対面キッチン
ALT_写真44-黒いペンダントライトが下がる木目天板の対面キッチン.jpg 187.05 KB
ダイニングのイスに座る人と、キッチンに立つ人の目線が合うように、キッチン作業台からリビング側は一段下がったダウンフロアです。ダイニングテーブルとキッチンの作業台は高さをそろえ、配膳、片づけがラクになるよう計算されています。

・エリア 長野県
・敷地面積 199.73坪(660.29㎡)
・延床面積 26.3坪(86.95㎡)

>>施工事例:長野県北佐久郡「田園風景を取り込むアートハウス」

>>参考コラム:玄関をおしゃれにするポイント&施工事例25選!写真付きで解説

煙突と赤いポストがアクセントの黒い外壁のモダンな平屋
ALT_写真45-煙突と赤いポストがアクセントの黒い外壁のモダンな平屋.jpg 171.24 KB
キャンプのベース基地をイメージして建てられた平屋。薪ストーブの煙突をアクセントに、道路からは室内が見えないよう高い位置に窓を配置しています。
板張りの天井にアイアンの照明が映えるヴィンテージなLDK
ALT_写真46-板張りの天井にアイアンの照明が映えるヴィンテージなLDK.jpg 251.59 KB
床はモルタル仕上げ、天井は板張り、キッチンはステンレスを選び、センスのいいカフェのような空間に。来客時は、2分割になっているカウンターを向かい合わせてダイニングテーブルに変えることで、おもてなしができます。
大きな鏡と木製カウンターを配した清潔感のある洗面スペース
ALT_写真47-大きな鏡と木製カウンターを配した清潔感のある洗面スペース.jpg 177.51 KB
キッチン、パントリーの2方向から洗面スペースにアクセスでき、便利な回遊動線を取り入れた間取りです。

・エリア 千葉県
・敷地面積 60.5坪(200.00㎡)
・延床面積 26.55坪(87.77㎡)

>>施工事例:千葉県印旛郡「夫婦と愛犬の趣味を楽しむ平屋」

黒い外壁と木目の玄関ポーチが映える平屋の外観
ALT_写真48-黒い外壁と木目の玄関ポーチが映える平屋の外観.jpg 166.38 KB
遠くの景色や庭とLDKがつながる、開放感のある平屋。立体感のある形状で、長い玄関アプローチには緑の植栽が映えます。
広いウッドデッキと芝生の庭がある黒い外装の住宅
ALT_写真49-広いウッドデッキと芝生の庭がある黒い外装の住宅.jpg 322.42 KB
南側には深い庇を持つ縁側を配置。自然を眺めながら、家族団らんができます。
造作デスクとグレーのソファを配置した白いリビング
ALT_写真50-造作デスクとグレーのソファを配置した白いリビング.jpg 168.16 KB
リビング横にはスタディカウンターを設置。子ども部屋には机を置かず、家族の近くで勉強ができます。

・エリア 長野県
・敷地面積 102.75坪(339.69㎡)
・延床面積 26.55坪(87.77㎡)

>>施工事例:長野県佐久市「外との繋がりを感じる 縁側のある住まい」

>>参考コラム:子育てしやすい注文住宅とは?家づくりのポイントや間取りの実例を解説

片流れ屋根とグレーの外壁が特徴的なモダンな平屋
ALT_写真51-片流れ屋根とグレーの外壁が特徴的なモダンな平屋.jpg 147.09 KB
片流れ屋根のシンプルな箱型の平屋。延床面積25坪未満のスペースに、無駄がなく家事がラクな回遊動線の間取りを取り入れています。
無垢材の床と大きな窓が開放的な明るいLDK
ALT_写真52-無垢材の床と大きな窓が開放的な明るいLDK.jpg 180.6 KB
LDKはコンパクトですが無駄がないつくり。外に視線が抜けるため、面積以上の広さを感じられます。
木製のカウンターと白い棚を設えた清潔感のあるキッチン
ALT_写真53-木製のカウンターと白い棚を設えた清潔感のあるキッチン.jpg 130.57 KB
ファミリークローゼット、洗面スペース、脱衣室、浴室は一直線に配置され回遊できる動線で、家事がラクになる間取りです。キッチンの奥の扉を開けると脱衣室、リビング横の扉は洗面スペースにつながっています。

・エリア 沖縄県
・敷地面積 54.01坪(178.57㎡)
・延床面積 23.67坪(78.25㎡)

>>施工事例:沖縄県南城市「家事がはかどる四角い平屋」

>>参考コラム:家事動線がいい間取りの家とは?【施工事例12選】家事が楽になるアイデアも!

三角形に切り取られた玄関ポーチが目を引く平屋の夕景
ALT_写真54-三角形に切り取られた玄関ポーチが目を引く平屋の夕景.jpg 225.34 KB
箱の角を切り落としたような、斜め壁のデザインがユニークな平屋。プライバシーに配慮し、東側は窓を少なくしています。
夜の庭を照らすライトアップされたウッドデッキとテラス
ALT_写真55-夜の庭を照らすライトアップされたウッドデッキとテラス.jpg 216.02 KB
日当たりのいい南側には壁に囲まれた、屋根付きのインナーテラス。ゆったりとくつろげる家族のお気に入りの場所です。
引き戸で仕切られた無垢フローリングの洋室と個室
ALT_写真56-引き戸で仕切られた無垢フローリングの洋室と個室.jpg 128.78 KB
寝室は、隣の洋室との間にある扉を閉めれば、仕切れる仕様に。ふだんは開け放して広い部屋として使用しつつ、来客時は扉を閉めて別の部屋として使える、可変性のある間取りです。

・エリア 三重県
・敷地面積 81.42坪 (269.16㎡)
・延床面積 22.72坪(75.12㎡)

>>施工事例:三重県員弁郡「インナーテラスのある平屋で快適な生活を」

>>参考コラム:心が落ち着く「寝室インテリア15選!」おしゃれに見えるポイントを解説
20坪台でコンパクトに暮らしやすい平屋の間取りが気になる方は、ぜひお気軽にR+houseネットワークの工務店へご相談ください。R+houseネットワークの工務店では、提携建築家がお施主様のライフスタイルや要望を取り入れた設計をご提案いたします。施工は、建材の仕入れなどを一括で行う仕組みを取り入れ、コストダウンを実現。高断熱・高気密・高耐震の理想の住宅を、手が届く価格で提供します。ご興味を持たれましたら、R+houseネットワーク工務店へお気軽にお問い合わせください。

>>R+houseネットワークの「20坪台」×「平屋」の施工事例はこちら!

R+houseについてさらに詳しく知りたい方は

個性が見える施工事例
「個性が見える施工事例」のコラムをもっと見る
施工事例リンク

「個性が見える施工事例」のコラムでよく読まれています

グレーの家の外観デザイン24選!おしゃれな外壁・玄関の施工事例をチェック

グレーの家の外観デザイン24選!おしゃれな外壁・玄関の施工事例をチェック

2025.08.20
おしゃれなバルコニー20選!バルコニーの建築事例を一挙ご紹介

おしゃれなバルコニー20選!バルコニーの建築事例を一挙ご紹介

2025.04.23
心が落ち着く「寝室インテリア15選!」おしゃれに見えるポイントを解説

心が落ち着く「寝室インテリア15選!」おしゃれに見えるポイントを解説

2025.04.08
30坪間取り平屋の実例7選!平屋の魅力やこだわるべきポイントなどを徹底解説

30坪間取り平屋の実例7選!平屋の魅力やこだわるべきポイントなどを徹底解説

2026.01.13
スタディースペース事例17選!後悔しない間取り・広さ・設備なども紹介

スタディースペース事例17選!後悔しない間取り・広さ・設備なども紹介

2025.07.03
子ども部屋のインテリアをおしゃれに!おすすめ施工事例を10選ご紹介

子ども部屋のインテリアをおしゃれに!おすすめ施工事例を10選ご紹介

2025.04.14

カテゴリからコラムを探す

デザインのヒント
デザインのヒント
スタイル・暮らしのヒント
スタイル・暮らしのヒント
設備・性能
設備・性能
間取りのヒント
間取りのヒント
家と周辺環境
家と周辺環境
注文住宅の基礎知識
注文住宅の基礎知識
個性が見える施工事例
個性が見える施工事例
お金と住まい
お金と住まい
カタログ請求
イベント検索
工務店無料相談